〒781-0083 高知県高知市北御座12番18号 福徳ハイツ2階事務所
「JAファーマーズマーケットとさのさと」より徒歩3分 駐車場2台あり
(公社)高知県宅地建物取引業協会会員(公社)全国宅地建物取引業保証協会会員 高知県知事(1)第3047号

9:00~18:00(水曜日を除く)

088-855-6152

建築条件なし土地 高知市新屋敷2丁目 小高坂小学校区

価格 1,837万円
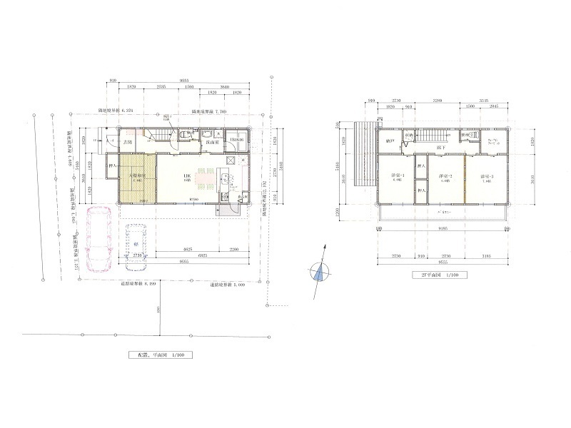
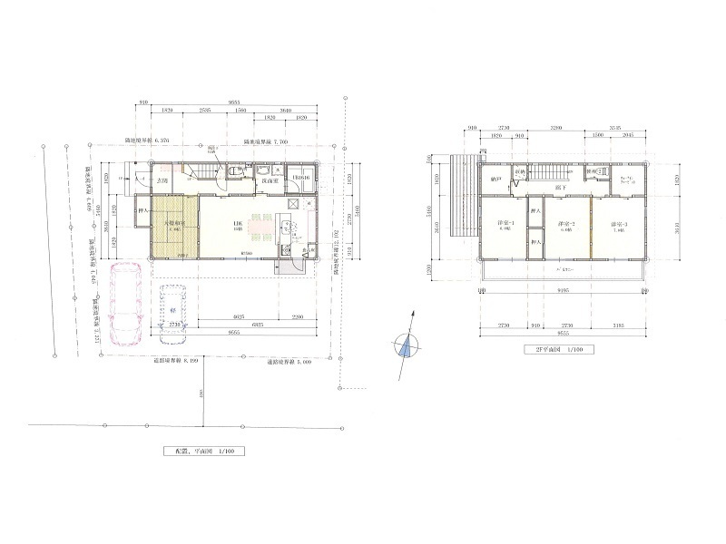
土地面積 実測/164.22㎡(49.67坪)
所在地 高知市新屋敷2丁目
交通 ・西新屋敷バス停 徒歩1分 ・円行寺口駅 徒歩3分

おすすめポイント
◇◆建築条件なし土地・建物プランあります。◆◇

・南向きで日当たり良好。
・周辺には商業施設も充実。日々の買い物にも便利な環境。
・駅、バス停が近く、通勤通学もスムーズ。
・小中学校近く!
教育施設が揃う、充実の子育て環境♪

物件詳細情報

所在地 高知市新屋敷2丁目
物件種目 建築条件なし土地
価格 1,837万円
交通 ・西新屋敷バス停 徒歩1分 ・円行寺口駅 徒歩3分
土地面積

実測/ 164.22㎡(49.67坪)

築年数 -
設備

-

土地権利 所有権 都市計画 市街化区域
用途地域 第一種中高層住居専用地域 接道状況 一方
南 幅4m 公道 接面14.3m
建ぺい率 60% 容積率 200%
地目 宅地 地勢 -
セットバック - 建築確認番号 -
現況 更地 引渡可能時期 相談
小学校区

小高坂小学校210m

中学校区 城北中学校600m
周辺環境

◆サニーマート中万々店1,100m◆ローソン高知南万々店450m◆よどやドラッグ高知南万々店450mダイソー万々店450m◆細木病院600m

特記事項 -
物件番号

60469

情報公開日 2026/4

現地写真

現地写真

現地写真

前面道路を含む現地写真

建物プラン例:パース・外観

建物プラン例:間取り

小高坂小学校

城北中学校

サニーマート中万々店

ローソン高知南万々店

ダイソー万々店

細木病院

お気軽にお問合せ・ご相談ください

お電話でのお問合せ・ご相談はこちら
088-855-6152
受付時間
9:00~18:00
定休日
水曜日

お気軽にお問合せください

お電話でのお問合せ・相談予約

088-855-6152

<受付時間>
9:00~18:00
※水曜日は除く

フォームは24時間受付中です。お気軽にご連絡ください。

縁不動産

住所

〒781-0083
高知県高知市北御座12番18号 福徳ハイツ2階事務所

アクセス

「JAファーマーズマーケットとさのさと」より徒歩3分
駐車場2台あり

受付時間

9:00~18:00

定休日

水曜日