〒781-0083 高知県高知市北御座12番18号 福徳ハイツ2階事務所
「JAファーマーズマーケットとさのさと」より徒歩3分 駐車場2台あり
(公社)高知県宅地建物取引業協会会員(公社)全国宅地建物取引業保証協会会員 高知県知事(1)第3047号

9:00~18:00(水曜日を除く)

088-855-6152

建築条件付き土地 高知市百石町2丁目・4号地 潮江小学校区

価格 920万円
土地面積

公簿/94.02㎡(28.44坪)

所在地 高知市 百石町 2丁目
交通 ・コミュニティ住宅前バス停 徒歩3分 ・とさでん交通桟橋線桟橋通二丁目駅 徒歩6分

おすすめポイント
◇◆建築条件付き土地・プラン例あります◆◇
・周辺には多彩な商業施設が揃っており、日常の買い物にも便利な立地です。
・静かで落ち着いた住環境。

上水道引込工事代金、新設分担金439,500 円(税込)
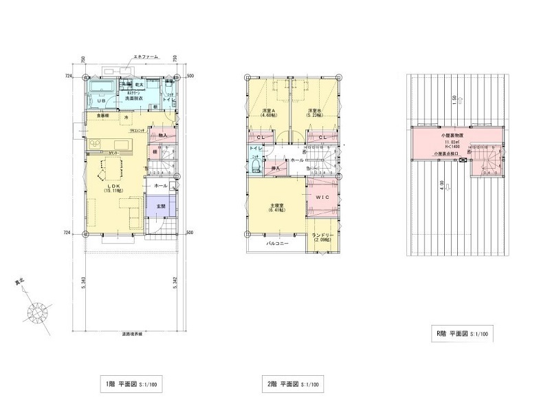
※建物プラン例 89.28㎡(約26.99坪)2,260万円(税込)プラン変更できます。

物件詳細情報

所在地 高知市 百石町 2丁目
物件種目 建築条件付き土地
価格 920万円
交通 ・コミュニティ住宅前バス停 徒歩3分 ・とさでん交通桟橋線桟橋通二丁目駅バス停 徒歩6
土地面積

公簿/94.02㎡(28.44坪)

築年数 -
設備

-

土地権利 所有権 都市計画 市街化区域
用途地工 第一種住居地域 接道状況 一方 
南西 幅6.5m 公道 接面6.3m
建ぺい率 60% 容積率 200%
地目 宅地 地勢 -
セットバック 建築確認番号 -
現況 更地 引渡可能時期 相談
小学校区

潮江小学校300m

中学校区 潮江中学校850m
周辺環境

◆ファミリーマート高知百石二丁目店110m◆プロマート百石店350m◆四国銀行潮江支店350m◆よどやドラッグ塩屋崎店350m

特記事項 ・上水道引込工事代金、新設分担金439,500 円(税込)
・太陽光発電システム6.6kw搭載(10年間屋根貸しシステム)
物件番号

60456

情報公開日 2026/4

現地写真

プラン例:間取り

プラン例:パース

プラン例:パース

プラン例:パース

プラン例:パース

潮江小学校

潮江中学校

ファミリーマート高知百石二丁目店

プロマート百石店

四国銀行潮江支店

よどやドラッグ塩屋崎店

お気軽にお問合せ・ご相談ください

お電話でのお問合せ・ご相談はこちら
088-855-6152
受付時間
9:00~18:00
定休日
水曜日

お気軽にお問合せください

お電話でのお問合せ・相談予約

088-855-6152

<受付時間>
9:00~18:00
※水曜日は除く

フォームは24時間受付中です。お気軽にご連絡ください。

縁不動産

住所

〒781-0083
高知県高知市北御座12番18号 福徳ハイツ2階事務所

アクセス

「JAファーマーズマーケットとさのさと」より徒歩3分
駐車場2台あり

受付時間

9:00~18:00

定休日

水曜日