〒781-0083 高知県高知市北御座12番18号 福徳ハイツ2階事務所
「JAファーマーズマーケットとさのさと」より徒歩3分 駐車場2台あり
(公社)高知県宅地建物取引業協会会員(公社)全国宅地建物取引業保証協会会員 高知県知事(1)第3047号

9:00~18:00(水曜日を除く)

088-855-6152

建築条件付き土地 高知市瀬戸南町1丁目・東 横浜小学校区

価格 970万円
土地面積

公簿/121.69㎡(36.81坪)

所在地 高知市瀬戸南町1丁目
交通 長浜バイパスバス停 徒歩4分 

おすすめポイント
◇◆建築条件付き土地・プラン例あります◆◇
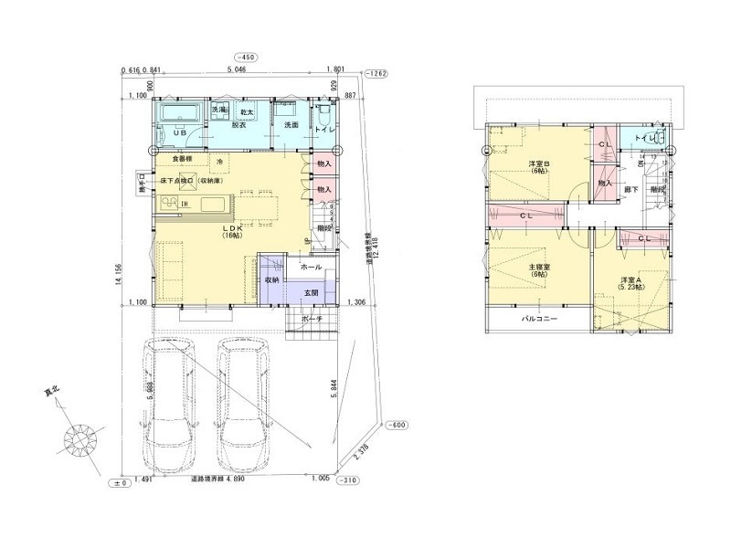
・建物プラン 87.77㎡(約26.54坪)2,110万円(税込)※プラン変更できます。
・津波浸水予測区域外・洪水浸水想定区域外で安心の立地。
・南東角地で日当たり良好。

・周辺には多彩な商業施設が揃っており、日常の買い物にも便利な立地です。
・静かで落ち着いた住環境。

別途 上水道引込工事代金・新設分担金385,100円(税込)

物件詳細情報

所在地 高知市瀬戸南町1丁目
物件種目 建築条件付き土地
価格 970万円
交通 長浜バイパスバス停 徒歩4分
土地面積

公簿/121.69㎡(36.81坪)

築年数 -
設備

-

土地権利 所有権 都市計画 市街化区域
用途地工 第一種低層住居専用地域 接道状況 角地
東 幅:6m 公道 接面:14.4m
南 幅:4.6m 公道 接面:6m
建ぺい率 50% 容積率 80%
地目 宅地 地勢 -
セットバック 建築確認番号 -
現況 更地 引渡可能時期 相談
小学校区

横浜小学校1,100m

中学校区 横浜中学校2,100m
周辺環境

◆サニーマート 瀬戸店350m◆サンシャイン ヴィアン店550m◆ダイソー 高知瀬戸店450m◆よどやドラッグ高知瀬戸店260m

特記事項 別途 上水道引込工事代金・新設分担金385,100円(税込)
物件番号

60454

情報公開日 2026/4

プラン例:間取り

プラン例:パース

プラン例:パース

プラン例:パース

プラン例:パース

現地写真

現地写真

現地写真

現地写真

現地写真

前面道路を含む現地写真

前面道路を含む現地写真

横浜小学校

横浜中学校

サニーマート 瀬戸店

サンシャイン ヴィアン店

ダイソー 高知瀬戸店

よどやドラッグ高知瀬戸店

お気軽にお問合せ・ご相談ください

お電話でのお問合せ・ご相談はこちら
088-855-6152
受付時間
9:00~18:00
定休日
水曜日

お気軽にお問合せください

お電話でのお問合せ・相談予約

088-855-6152

<受付時間>
9:00~18:00
※水曜日は除く

フォームは24時間受付中です。お気軽にご連絡ください。

縁不動産

住所

〒781-0083
高知県高知市北御座12番18号 福徳ハイツ2階事務所

アクセス

「JAファーマーズマーケットとさのさと」より徒歩3分
駐車場2台あり

受付時間

9:00~18:00

定休日

水曜日