〒781-0083 高知県高知市北御座12番18号 福徳ハイツ2階事務所
「JAファーマーズマーケットとさのさと」より徒歩3分 駐車場2台あり
(公社)高知県宅地建物取引業協会会員(公社)全国宅地建物取引業保証協会会員 高知県知事(1)第3047号

9:00~18:00(水曜日を除く)

088-855-6152

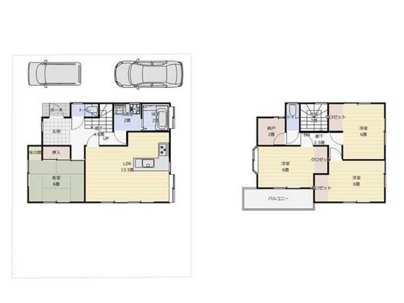
中古住宅 高知市潮見台2丁目 4LDK 介良潮見台小学校区 

価格 2,550万円 間取り 4LDK
建物面積 101.02㎡(30.55坪) 土地面積 164.85㎡(49.86坪)
駐車場台数

2台

所在地 高知市潮見台二丁目
交通 潮見台二丁目バス停 徒歩5分 

おすすめポイント
◇◆1995年[H7]3◆◇
白蟻工事済5年保証付
・全面リフォーム済!気持ちよく新生活をスタート!
・リビング横に和室。くつろぎ&お子様スペースに最適。
・高台に位置し、落ち着いた住環境。
・最寄りのバス停5分。公共交通機関をご利用の方にも便利な立地です。

物件詳細情報

所在地 高知市潮見台二丁目
物件種目 中古一戸建
価格 2,550万円
交通

潮見台二丁目バス停 徒歩5分

間取り

4LDK

建物面積 101.02㎡(30.55坪)
土地面積 164.85㎡(49.86坪)
築年数 1995[H7] 年3月
リフォーム履歴

・リフォーム:水回り 2025年09月完了 (キッチン・浴室・トイレ・洗面所・給湯器)
・リフォーム:内装 2025年09月完了 (全面(床・壁・天井・建具))
・リフォーム:外装 2025年09月完了 (外壁・屋根)

リノベーション履歴 -
設備 トイレ2ヶ所・温水洗浄便座・浴室に窓・浴室1坪以上・シャワー付洗面化粧台・全居室収納モニター付インターホン・プロパンガス・上水道・下水道
駐車場 2台(庭にも停めれば縦列3台可) 建物構造/階建 木造/2階建
土地権利 所有権 都市計画 市街化区域
用途地域 第一種低層住居専用地域 接道状況

-

建ぺい率 60% 容積率 100%
地目 宅地 地勢 高台
セットバック - 建築確認番号 -
現況

空家

引渡可能時期 即時
小学校区

介良潮見台小学校600

中学校区 介良中学校2,800m
周辺環境

◆サンシャインフレッシュパワー介良1,800mローソン南国伊達野店1,400m◆パワーセンター高知2,200m◆中野簡易郵便局1,700m

特記事項 -
物件番号

60448

情報公開日 2026/4

リビング

リビング

キッチン

キッチン

キッチン

洋室

収納

玄関

その他

外観

介良潮見台小学校

介良中学校

パワーセンター高知

サンシャイン フレッシュパワー 介良店

お気軽にお問合せ・ご相談ください

お電話でのお問合せ・ご相談はこちら
088-855-6152
受付時間
9:00~18:00
定休日
水曜日

お気軽にお問合せください

お電話でのお問合せ・相談予約

088-855-6152

<受付時間>
9:00~18:00
※水曜日は除く

フォームは24時間受付中です。お気軽にご連絡ください。

縁不動産

住所

〒781-0083
高知県高知市北御座12番18号 福徳ハイツ2階事務所

アクセス

「JAファーマーズマーケットとさのさと」より徒歩3分
駐車場2台あり

受付時間

9:00~18:00

定休日

水曜日