〒781-0083 高知県高知市北御座12番18号 福徳ハイツ2階事務所
「JAファーマーズマーケットとさのさと」より徒歩3分 駐車場2台あり
(公社)高知県宅地建物取引業協会会員(公社)全国宅地建物取引業保証協会会員 高知県知事(1)第3047号

9:00~18:00(水曜日を除く)

088-855-6152

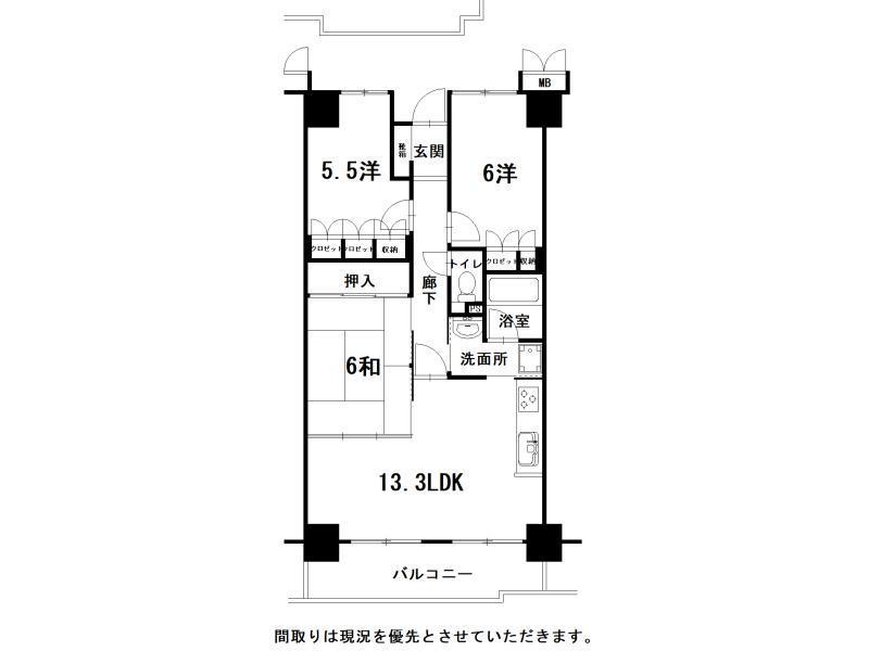
中古マンション サーパス北本町第2 3LDK 5階部分 江陽小学校区 

価格 1,580万円 間取り 3LDK
専有面積 69.05㎡(20.88坪) 管理費/積立金

6,900円/11,700円

駐車場

有 1台9,000円/月

所在地 高知市北本町4丁目
交通 ・大田川橋バス停 徒歩2分 ・とさでん交通宝永町駅 徒歩13分

おすすめポイント
◇◆築年数1996年2月 3LDK◆◇
・周辺には多彩な商業施設が揃っており、日常の買い物にも便利な立地です。生活利便性に優れた環境で、快適な暮らしをサポートします。
・日々の生活を守る、充実したセキュリティ設備を完備。
徒歩10分以内に教育施設が揃う、充実の子育て環境!お子様の通学に無理ない距離で安心♪

物件詳細情報

所在地 高知市北本町4丁目
物件種目 中古マンション
価格 1,580万円
交通 ・大田川橋バス停 徒歩2分 ・とさでん交通宝永町駅 徒歩13分
間取り

3LDK/13.3LDK・6和・6洋・5.5洋

専有面積 69.05㎡(20.88坪)
管理費/積立金 6,900円/11,700円
築年数 1996 [H8]年 2月
リフォーム履歴

-

リノベーション履歴 -
設備 温水洗浄便座・バストイレ別・洗面台・システムキッチン・ガスコンロ可・3口コンロ・収納スペース・全居室収納・クローゼット・室内洗濯機置場・モニター付インターホン・エレベーター
駐車場 有 1台9,000円/月 駐車場備考 -
建物構造/階建 RC/地上11階 5階部分 土地権利 所有権
バルコニー

 南:8.95㎡

管理形態 管理会社に全部委託
管理会社 - 管理員の勤務形態 日勤
現況

空家

引渡可能時期 相談
小学校区

江陽小学校400m

中学校区 城東中学校350m
周辺環境

◆サンシャインクレア店600m◆ローソン高知北本町四丁目店250m◆エースワン御座店800m◆ケーズデンキ高知駅前店700m◆ドラッグコスモス江陽小学校前店350m

特記事項 -
物件番号 60445 情報公開日 2026/3

リビング

リビング

キッチン

洗面所

トイレ

洋室

収納

洋室

洋室

収納

和室

和室

バルコニー

その他

江陽小学校

城東中学校

サンシャインクレア店

ローソン高知北本町4丁目店

よどやドラッグ高知南金田店

ドラッグストアコスモス江陽小学校前店

ケーズデンキ高知駅前店

お気軽にお問合せ・ご相談ください

お電話でのお問合せ・ご相談はこちら
088-855-6152
受付時間
9:00~18:00
定休日
水曜日

お気軽にお問合せください

お電話でのお問合せ・相談予約

088-855-6152

<受付時間>
9:00~18:00
※水曜日は除く

フォームは24時間受付中です。お気軽にご連絡ください。

縁不動産

住所

〒781-0083
高知県高知市北御座12番18号 福徳ハイツ2階事務所

アクセス

「JAファーマーズマーケットとさのさと」より徒歩3分
駐車場2台あり

受付時間

9:00~18:00

定休日

水曜日