〒781-0083 高知県高知市北御座12番18号 福徳ハイツ2階事務所
「JAファーマーズマーケットとさのさと」より徒歩3分 駐車場2台あり
(公社)高知県宅地建物取引業協会会員(公社)全国宅地建物取引業保証協会会員 高知県知事(1)第3047号

9:00~18:00(水曜日を除く)

088-855-6152

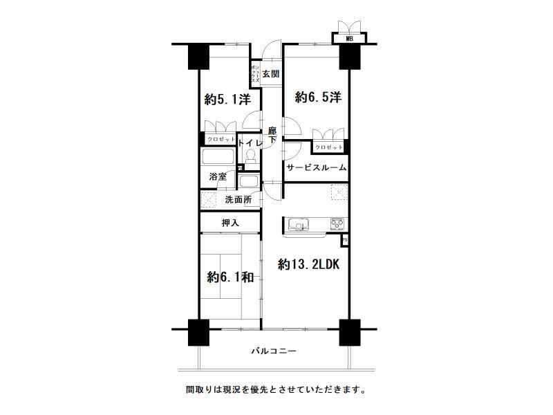
中古マンション アルファステイツ桟橋通りⅢ 3SLDK 2階部分 潮江東小学校区 

価格 1,480万円 間取り 3SLDK
専有面積

壁芯/74.60㎡(22.56坪)

管理費/積立金

7,500円/9,700円

駐車場

有 10,000円/月

所在地 高知市桟橋通り3丁目
交通 とさでん交通桟橋通三丁目バス停 徒歩1分 

おすすめポイント
◇◆築年数1999年5月 3SLDK◆◇
・買い物施設も近く、毎日の暮らしに便利な住環境。
・セキュリティ面にも配慮された安心のマンション。
・サービスルーム付きで多用途に使える間取りです。

・小学校近く、子育て世帯にもうれしいの立地です。

物件詳細情報

所在地 高知市桟橋通3丁目
物件種目 中古マンション
価格 1,480万円
交通 とさでん交通桟橋通三丁目バス停 徒歩1分
間取り

3SLDK

専有面積

壁芯/ 74.60㎡(22.56坪)

管理費/積立金 7,500円/9,700円
築年数 1999[H11]年 5月
リフォーム履歴

-

リノベーション履歴 -
設備 温水洗浄便座・バストイレ別・洗面台・システムキッチン・ガスコンロ可・3口コンロ・収納スペース・全居室収納・クローゼット・室内洗濯機置場・フローリング・オートロック・エレベーター
駐車場 有 10,000円/月 駐車場備考 -
建物構造/階建

SRC/地上13階 2階部分

土地権利 所有権
バルコニー

  南東  11.52㎡

管理形態 管理会社に全部委託
管理会社 合人社計画研究所 管理員の勤務形態 日勤
現況

居住中

引渡可能時期 相談
小学校区

潮江東小学校600m

中学校区 潮江中学校1,200m
周辺環境

◆毎日屋さんばし店82m◆エースワン潮江店600m◆ファミリーマート桟橋通4丁目店210m◆四国銀行潮江支店180m

特記事項 -
物件番号

60436

情報公開日 2026/3

浴室

洗面脱衣室

トイレ

洋室

和室

和室

廊下

バルコニー

バルコニー

潮江東小学校

潮江中学校

毎日屋さんばし店

エースワン潮江店

ファミリーマート桟橋通4丁目

四国銀行潮江支店

お気軽にお問合せ・ご相談ください

お電話でのお問合せ・ご相談はこちら
088-855-6152
受付時間
9:00~18:00
定休日
水曜日

お気軽にお問合せください

お電話でのお問合せ・相談予約

088-855-6152

<受付時間>
9:00~18:00
※水曜日は除く

フォームは24時間受付中です。お気軽にご連絡ください。

縁不動産

住所

〒781-0083
高知県高知市北御座12番18号 福徳ハイツ2階事務所

アクセス

「JAファーマーズマーケットとさのさと」より徒歩3分
駐車場2台あり

受付時間

9:00~18:00

定休日

水曜日