〒781-0083 高知県高知市北御座12番18号 福徳ハイツ2階事務所
「JAファーマーズマーケットとさのさと」より徒歩3分 駐車場2台あり
(公社)高知県宅地建物取引業協会会員(公社)全国宅地建物取引業保証協会会員 高知県知事(1)第3047号

9:00~18:00(水曜日を除く)

088-855-6152

新築住宅 高知市朝倉本町2丁目・南 2階建 3LDK 朝倉小学校区 

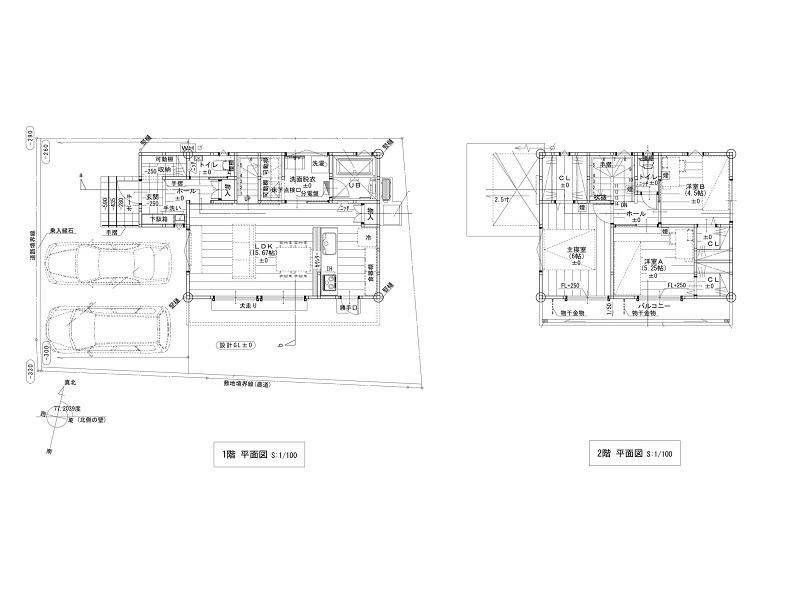
価格 3,680万円 間取り 3LDK
建物面積 84.45㎡(25.54坪) 土地面積 131.65㎡(39.82坪)
駐車場台数

2台

所在地 高知市朝倉本町2丁目
交通 北城山バス停 徒歩5分

おすすめポイント
◇◆2026年[R8]12月完成◆◇
フラット35S適合証明書:有 耐震基準適合証明書:有

・「北城山」バス停まで徒歩5分!
・朝倉小学校まで徒歩5分!お子様の通学に無理ない距離で安心!
太陽光発電システム5.28kw搭載。

※別途 上水道引込工事代金375,500円(税込)
※セットバック必
要(上記敷地面積はセットバック後の面積)

物件詳細情報

所在地 高知市朝倉本町2丁目
物件種目 新築一戸建
価格 3,680万円
交通 北城山バス停 徒歩5分
間取り

3LDK/1階 15.67LDK/2階 4.5洋・6洋・5.25洋

建物面積 84.45㎡(25.54坪)
土地面積 公簿/ 131.65㎡(39.8233.65坪)
築年数 2026[R8] 年 12月
リフォーム履歴 -
リノベーション履歴 -
設備 トイレ2ヶ所・温水洗浄便座・バストイレ別・シャワー・浴室乾燥機・浴室暖房・洗面所・シャワー付洗面化粧台・システムキッチン・IHクッキングヒーター・食器洗浄乾燥機・収納スペース・床下収納・クローゼット・洗濯機置場・フローリング・全居室フローリング・クッションフロア・シャッター・照明器具・人感センサー付照明・モニター付インターホン・上水道・下水道・浄化槽・側溝・オール電化・太陽光発電システム・EV車充電設備・閑静な住宅街・整形地・外壁サイディング
駐車場 2台 建物構造/階建 木造/2階建
土地権利 所有権 都市計画 市街化区域
用途地域 第一種中高層住居専用地域 接道状況 一方 
西 幅4m 公道 接面8.8m
建ぺい率 60% 容積率 200%
地目 宅地 地勢 -
セットバック 要(上記敷地面積はセットバック後の面積) 建築確認番号

R07-00864号

現況

未完成

引渡可能時期 相談
小学校区

朝倉小学校350m

中学校区 朝倉中学校1,100m
周辺環境 ◆エースワン朝倉店600m◆ローソン朝倉本町2丁目店350m◆朝倉郵便局500m◆ベスト電器高知西店650m◆高知大学朝倉キャンパス88m
物件番号 60063 情報公開日 2026/4

プラン例:パース

プラン例:パース

プラン例:パース

省エネ性能ラベル

朝倉小学校

朝倉中学校

エースワン朝倉店

ベスト電器高知西店

高知大学朝倉キャンパス

お気軽にお問合せ・ご相談ください

お電話でのお問合せ・ご相談はこちら
088-855-6152
受付時間
9:00~18:00
定休日
水曜日

お気軽にお問合せください

お電話でのお問合せ・相談予約

088-855-6152

<受付時間>
9:00~18:00
※水曜日は除く

フォームは24時間受付中です。お気軽にご連絡ください。

縁不動産

住所

〒781-0083
高知県高知市北御座12番18号 福徳ハイツ2階事務所

アクセス

「JAファーマーズマーケットとさのさと」より徒歩3分
駐車場2台あり

受付時間

9:00~18:00

定休日

水曜日