〒781-0083 高知県高知市北御座12番18号 福徳ハイツ2階事務所
「JAファーマーズマーケットとさのさと」より徒歩3分 駐車場2台あり
(公社)高知県宅地建物取引業協会会員(公社)全国宅地建物取引業保証協会会員 高知県知事(1)第3047号

9:00~18:00(水曜日を除く)

088-855-6152

中古住宅 高知市鴨部2丁目 2階建て 3SLDK 鴨田小学校区 

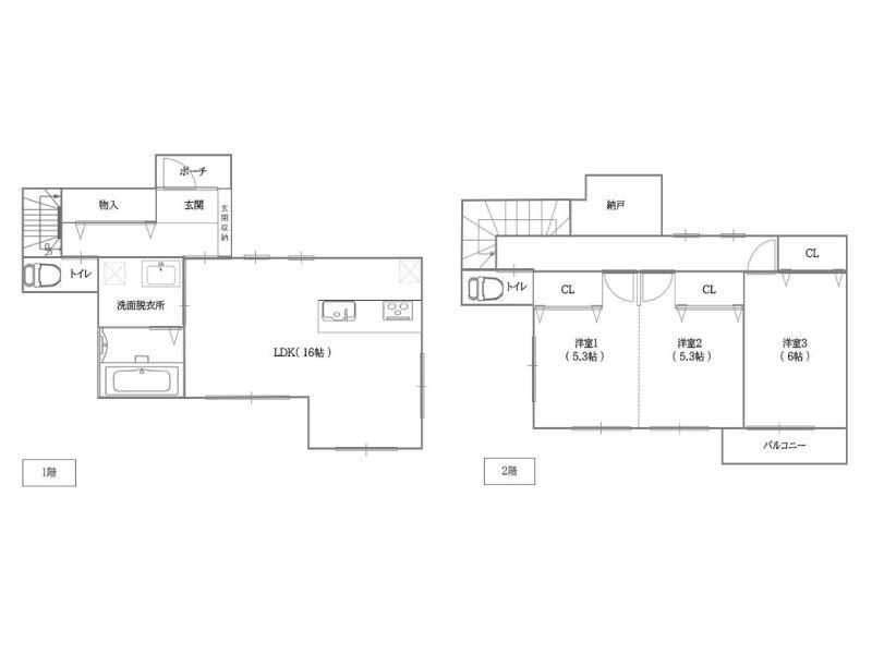
価格 2,680万円 間取り 3SLDK
建物面積 89.43㎡(27.05坪) 土地面積

101.00㎡(30.55坪)

駐車場台数

駐車2台

所在地 高知市鴨部2丁目
交通 古新堂バス停 徒歩2分

おすすめポイント
◇◆築年数2021年[R3]5月 3SLDK◆◇
・小中学校が近く、通学も安心の立地です。
・バス停が近く、通学やお出かけにも便利!さらに周辺には買い物施設も多く、生活利便性の高い住環境です。

・収納が豊富で室内をすっきりと保てます。

物件詳細情報

所在地 高知市鴨部2丁目
物件種目 中古一戸建
価格 2,680万円
交通 古新堂バス停 徒歩2分
間取り

3SLDK/1階 15.5LDK / 2階 5.2洋・5.2洋・6洋・2S

建物面積 89.43㎡(27.05坪)
土地面積 公簿/101.00㎡(30.55坪)
築年数 2021 [R3] 年5月
リフォーム履歴 -
リノベーション履歴 -
設備

トイレ2ヶ所・バストイレ別・追焚機能・シャワー・浴室に窓・洗面所・洗面台・カウンターキッチン・食器乾燥機・クローゼット・納戸・エアコン・室内洗濯機置場・全居室フローリング・電気・上水道・下水道・側溝

駐車場 駐車2台 建物構造/階建 木造/2階建
土地権利 所有権 都市計画 市街化区域
用途地域 近隣商業地域 接道状況 一方
北 幅5.3m 公道 接面13m
建ぺい率 80% 容積率 200%
地目 宅地 地勢 平坦
セットバック - 建築確認番号 -
現況

空家

引渡可能時期 相談
小学校区

鴨田小学校500m

中学校区 西部中学校400m
周辺環境 ◆コープかもべ店550m◆フジグラン高知900m◆ローソン鴨部店280◆TSUTAYA土佐道路店450m業務用食品スーパー鴨部店600m◆鴨部簡易郵便局200m
特記事項 -
物件番号

60395

情報公開日 2026/3

鴨田小学校

西部中学校

フジグラン高知

ローソン高知鴨部店

鴨部簡易郵便局

業務用食品スーパー鴨部店

お気軽にお問合せ・ご相談ください

お電話でのお問合せ・ご相談はこちら
088-855-6152
受付時間
9:00~18:00
定休日
水曜日

お気軽にお問合せください

お電話でのお問合せ・相談予約

088-855-6152

<受付時間>
9:00~18:00
※水曜日は除く

フォームは24時間受付中です。お気軽にご連絡ください。

縁不動産

住所

〒781-0083
高知県高知市北御座12番18号 福徳ハイツ2階事務所

アクセス

「JAファーマーズマーケットとさのさと」より徒歩3分
駐車場2台あり

受付時間

9:00~18:00

定休日

水曜日