〒781-0083 高知県高知市北御座12番18号 福徳ハイツ2階事務所
「JAファーマーズマーケットとさのさと」より徒歩3分 駐車場2台あり
(公社)高知県宅地建物取引業協会会員(公社)全国宅地建物取引業保証協会会員 高知県知事(1)第3047号

9:00~18:00(水曜日を除く)

088-855-6152

新築住宅 高知市介良乙 2階建 3LDK 介良小学校区 

価格

3,380万円

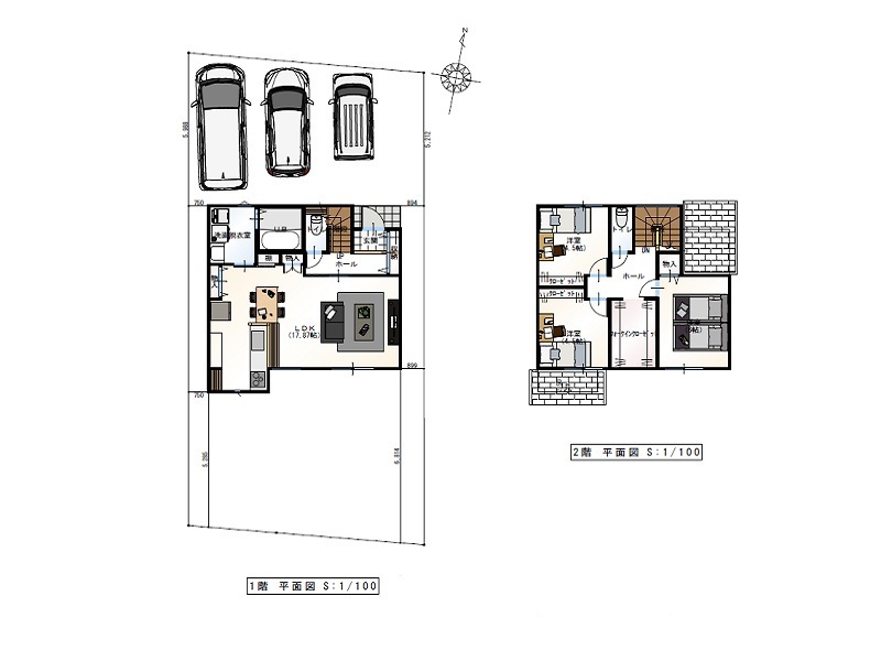
間取り 3LDK
建物面積 88.18㎡(26.67坪) 土地面積

164.97㎡(49.9坪)

駐車場台数

3台

所在地 高知市介良乙
交通

本江田橋バス停 徒歩9分

おすすめポイント
◇◆2026年[R8]7月完成予定◆◇
長期優良住宅(耐震等級3・断熱等級5)
・公共交通機関をご利用の方にも便利なバス停至近の立地です。
徒歩10分以内に教育施設が揃う、充実の子育て環境♪お子様の通学に無理ない距離で安心♪

物件詳細情報

所在地 高知市介良乙

物件種目

新築一戸建
価格

3,380万円

交通 本江田橋バス停 徒歩9分
間取り

3LDK/1階 17.87LDK/2階 4.5洋・4.5洋・6洋

建物面積 88.16㎡(26.67坪)
土地面積 164.97㎡(49.9坪)
築年数

2026[R8] 年 2

リフォーム履歴 -
リノベーション履歴 -
設備

上水道・下水道・プロパンガス

駐車場 3台 建物構造/階建 木造/2階建
土地権利 所有権 都市計画 市街化区域
用途地域 第一種低層住居専用地域 接道状況

一方
北 幅4m 公道 接面8.9
m

建ぺい率 60% 容積率 100%
地目 宅地 地勢 -
セットバック - 建築確認番号 849号
現況

未完成

引渡可能時期 相談
小学校区

介良小学校450

中学校区 介良中学校500m
周辺環境

◆ナンコクスーパー高須店1,400m◆ローソン介良乙店650mホームセンターブリコ介良店1,000◆ドラッグセイムス介良店1,200

物件番号

60335

情報公開日

2026/2

介良小学校

現地写真

現地写真

現地写真

現地写真

前面道路を含む現地写真

介良小学校

介良中学校

ナンコクスーパー高須店

ドラッグセイムス介良店

ホームセンターブリコ介良店

ローソン介良乙店

お気軽にお問合せ・ご相談ください

お電話でのお問合せ・ご相談はこちら
088-855-6152
受付時間
9:00~18:00
定休日
水曜日

お気軽にお問合せください

お電話でのお問合せ・相談予約

088-855-6152

<受付時間>
9:00~18:00
※水曜日は除く

フォームは24時間受付中です。お気軽にご連絡ください。

縁不動産

住所

〒781-0083
高知県高知市北御座12番18号 福徳ハイツ2階事務所

アクセス

「JAファーマーズマーケットとさのさと」より徒歩3分
駐車場2台あり

受付時間

9:00~18:00

定休日

水曜日