〒781-0083 高知県高知市北御座12番18号 福徳ハイツ2階事務所
「JAファーマーズマーケットとさのさと」より徒歩3分 駐車場2台あり
(公社)高知県宅地建物取引業協会会員(公社)全国宅地建物取引業保証協会会員 高知県知事(1)第3047号

9:00~18:00(水曜日を除く)

088-855-6152

中古住宅 土佐市甲原 2階建 6LDK 北原小学校区 

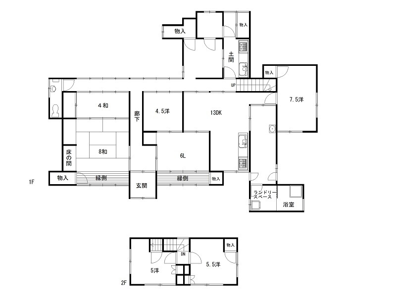
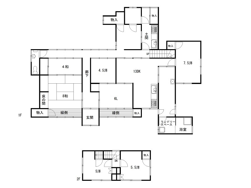
価格 730万円 間取り

6LDK

建物面積

202.26㎡(61.18坪)

土地面積

公簿/1,244.65㎡(376.50坪)

駐車場台数

2台以上可

所在地 土佐市甲原
交通  甲原船戸バス停 徒歩4分

おすすめポイント
◇◆築年数年:不明 1969年[S44年]増築◆◇
・自然に囲まれた静かな環境に位置する、敷地の広い住まいです。
・部屋数が多く、ご家族の多い方や趣味・仕事スペースを確保したい方にも対応可能な間取りです。

増築部分、別棟あり。農作業にも活用できる倉庫がついています。
・築年数不明ですが、古民家ならではの風合いを活かしたり、リフォームを前提にお考えの方にもおすすめです。
・詳しくはお問合せください。

※将来建替えの際は43条但し書き必要です。農地部分は農地法第3条申請が必要です。

物件詳細情報

所在地 土佐市甲原
物件種目 中古一戸建
価格 730万円
交通 甲原船戸バス停 徒歩4分 
間取り

6LDK

建物面積 202.26㎡(61.18坪)
土地面積 公簿/1,244.65㎡(376.50坪)
築年数 不明 1969年[S44年]増築
リフォーム履歴

-

リノベーション履歴 -
設備

バストイレ別・浴室に窓・収納スペース・ランドリースペース・土間・上水道・浄化槽・プロパンガス

駐車場 2台以上可 建物構造/階建 木造/2階建
土地権利 所有権 都市計画 非線引区域
用途地域 無指定 接道状況

-

建ぺい率 - 容積率 -
地目 宅地 地勢 -
セットバック - 建築確認番号 -
現況

空家

引渡可能時期 相談
小学校区

北原小学校800m

中学校区

高岡中学校5,300

周辺環境

 ◆ローソン 土佐甲原竹ノ後店400mマルナカ土佐店3,900m◆コスモス蓮池店4,100m

物件番号

61054

情報公開日

2026/2

外観

現地写真

現地写真

現地写真

現地写真

前面道路を含む現地写真

前面道路を含む現地写真

前面道路を含む現地写真

北原小学校

高岡中学校

ローソン 土佐甲原竹ノ後店

マルナカ 土佐店

お気軽にお問合せ・ご相談ください

お電話でのお問合せ・ご相談はこちら
088-855-6152
受付時間
9:00~18:00
定休日
水曜日

お気軽にお問合せください

お電話でのお問合せ・相談予約

088-855-6152

<受付時間>
9:00~18:00
※水曜日は除く

フォームは24時間受付中です。お気軽にご連絡ください。

縁不動産

住所

〒781-0083
高知県高知市北御座12番18号 福徳ハイツ2階事務所

アクセス

「JAファーマーズマーケットとさのさと」より徒歩3分
駐車場2台あり

受付時間

9:00~18:00

定休日

水曜日