〒781-0083 高知県高知市北御座12番18号 福徳ハイツ2階事務所
「JAファーマーズマーケットとさのさと」より徒歩3分 駐車場2台あり
(公社)高知県宅地建物取引業協会会員(公社)全国宅地建物取引業保証協会会員 高知県知事(1)第3047号

9:00~18:00(水曜日を除く)

088-855-6152

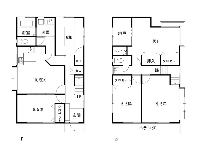
中古住宅 高知市北竹島町 5SDK 潮江南小学校区 

価格 1,380万円 間取り

5SDK

建物面積 125.03㎡(37.82坪) 土地面積 115.70㎡(34.99坪)
駐車場台数

2台

所在地 高知市北竹島町
交通

中高見バス停 徒歩4分

おすすめポイント
◇◆1994年[H6]9◆◇
・5DKの間取りで部屋数が多く、家族それぞれの個室や趣味の部屋としても活用できます。
・シャワー室を備えており、生活スタイルに合わせた使い分けが可能です。
・納戸があり、季節物や日用品の収納にも便利で住空間をすっきり保てる住まいです。
・閑静な住宅地に位置し、周囲は落ち着いた住環境です。
・駐車2台可(カーポート1台分)
周辺には多彩な商業施設が揃っており、日常の買い物にも便利な立地です。

・公共交通機関をご利用の方にも便利なバス停至近の立地です。

物件詳細情報

所在地 高知市北竹島町
物件種目 中古一戸建
価格 1,380万円
交通

中高見バス停 徒歩4分

間取り

5SDK

建物面積 125.03㎡(37.82坪)
土地面積 115.70㎡(34.99坪)
築年数 1994[H6] 年9月
リフォーム履歴

5年ほど前に外壁塗装済み

リノベーション履歴 -
設備 システムキッチン・トイレ2ヶ所・温水洗浄便座・洗面台・IHクッキングヒーター・浴室に窓・追焚機能・納戸・階段下収納・クロゼット・モニター付きインターホン・シャワー室・エコキュート
駐車場 2台 建物構造/階建 木造/2階建
土地権利 所有権 都市計画 市街化区域
用途地域 第一種住居地域 接道状況

-

建ぺい率 60% 容積率 200%
地目 宅地 地勢 -
セットバック - 建築確認番号 -
現況

居住中

引渡可能時期 相談
小学校区

潮江南小学校250m

中学校区 潮江中学校1,200m
周辺環境

◆プロマート百石店650m◆ファミリーマート高知北竹島店500m◆佐野屋竹島店300m◆mac竹島店300m◆竹島郵便局400m

特記事項 -
物件番号

61053

情報公開日 2026/1

前面道路を含む現地写真

前面道路を含む現地写真

前面道路を含む現地写真

潮江南小学校

潮江中学校

プロマート百石店

mac竹島店

ファミリーマート高知北竹島店

竹島郵便局

お気軽にお問合せ・ご相談ください

お電話でのお問合せ・ご相談はこちら
088-855-6152
受付時間
9:00~18:00
定休日
水曜日

お気軽にお問合せください

お電話でのお問合せ・相談予約

088-855-6152

<受付時間>
9:00~18:00
※水曜日は除く

フォームは24時間受付中です。お気軽にご連絡ください。

縁不動産

住所

〒781-0083
高知県高知市北御座12番18号 福徳ハイツ2階事務所

アクセス

「JAファーマーズマーケットとさのさと」より徒歩3分
駐車場2台あり

受付時間

9:00~18:00

定休日

水曜日