〒781-0083 高知県高知市北御座12番18号 福徳ハイツ2階事務所
「JAファーマーズマーケットとさのさと」より徒歩3分 駐車場2台あり
(公社)高知県宅地建物取引業協会会員(公社)全国宅地建物取引業保証協会会員 高知県知事(1)第3047号

9:00~18:00(水曜日を除く)

088-855-6152

中古住宅 高知市瀬戸2丁目 4DK 長浜小学校区 

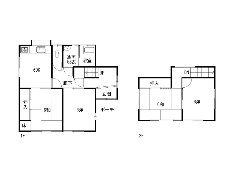
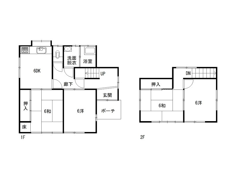
価格 680万円 間取り 4DK
建物面積 82.54㎡(24.96坪) 土地面積 116.34㎡(35.19坪)
駐車場台数

1台

所在地 高知市瀬戸2丁目
交通 瀬戸横丁バス停 徒歩5分

おすすめポイント
◇◆1983年[S58]12◆◇
・「長浜小学校」まで徒歩9分。お子様の通学に無理ない距離で安心です♪
・周辺には多彩な商業施設が揃っており、日常の買い物にも便利な立地です。

物件詳細情報

所在地 高知市瀬戸2丁目
物件種目 中古一戸建
価格 680万円
交通

瀬戸横丁バス停 徒歩5分 

間取り

4DK

建物面積 82.54㎡(24.96坪)
土地面積 116.34㎡(35.19坪)
築年数 1983[S58] 年12月
リフォーム履歴

-

リノベーション履歴 -
設備 バストイレ別・洗面台・浴室に窓
駐車場 1台 建物構造/階建 木造/2階建
土地権利 所有権 都市計画 市街化区域
用途地域 第一種住居地域 接道状況

-

建ぺい率 60% 容積率 200%
地目 宅地 地勢 -
セットバック - 建築確認番号 -
現況

空家

引渡可能時期 相談
小学校区

長浜小学校650m

中学校区 南海中学校1,000m
周辺環境

◆ナンコクスーパー長浜店450mファミリーマート高知長浜店850m◆セイムス長浜店800m

特記事項 -
物件番号

61051

情報公開日 2026/1

横前面道路を含む現地写真

前面道路を含む現地写真

前面道路を含む現地写真

前面道路を含む現地写真

前面道路を含む現地写真

長浜小学校

南海中学校

ナンコクスーパー長浜店

ドラッグセイムス長浜店

お気軽にお問合せ・ご相談ください

お電話でのお問合せ・ご相談はこちら
088-855-6152
受付時間
9:00~18:00
定休日
水曜日

お気軽にお問合せください

お電話でのお問合せ・相談予約

088-855-6152

<受付時間>
9:00~18:00
※水曜日は除く

フォームは24時間受付中です。お気軽にご連絡ください。

縁不動産

住所

〒781-0083
高知県高知市北御座12番18号 福徳ハイツ2階事務所

アクセス

「JAファーマーズマーケットとさのさと」より徒歩3分
駐車場2台あり

受付時間

9:00~18:00

定休日

水曜日