〒781-0083 高知県高知市北御座12番18号 福徳ハイツ2階事務所
「JAファーマーズマーケットとさのさと」より徒歩3分 駐車場2台あり
(公社)高知県宅地建物取引業協会会員(公社)全国宅地建物取引業保証協会会員 高知県知事(1)第3047号

9:00~18:00(水曜日を除く)

088-855-6152

中古住宅 香南市野市町西野 4LDK 野市小学校区 

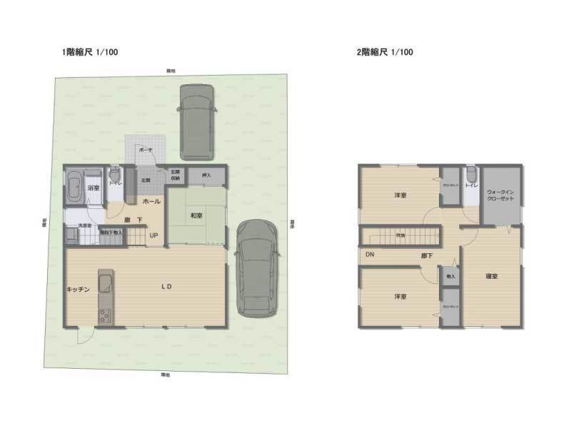
価格 2,900万円 間取り 4LDK
建物面積 107.74㎡(32.59坪) 土地面積 160㎡(48.4坪)
駐車場台数

3台

所在地 香南市野市町西野
交通 ゴスイデンバス停 徒歩6分

おすすめポイント
◇◆2017年[H29]1◆◇
・オール電化で安心の住まい。
・太陽光発電システムを備え、毎日の暮らしにやさしい住環境です。
・駐車場3台分確保され、日常使いから来客時まで安心。

物件詳細情報

所在地 香南市野市町西野
物件種目 中古一戸建
価格 2,900万円
交通

ゴスイデンバス停 徒歩6分 

間取り

4LDK

建物面積 107.74㎡(32.59坪)
土地面積 160㎡(48.4坪)
築年数 2017[H29] 年1月
リフォーム履歴

-

リノベーション履歴 -
設備 トイレ2ヶ所・温水洗浄便座・バストイレ別・洗面所・洗面台・システムキッチン・カウンターキッチン・3口コンロ・食器乾燥機・食器洗浄乾燥機・浄水器・収納スペース・床下収納・全居室収納・ウォークインクローゼット・エアコン2台以上・室内洗濯機置場・室内物干し・フローリング・複層ガラス・雨戸・照明器具・間接照明・ダウンライト・プロパンガス・オール電化・太陽光発電システム・閑静な住宅街・日当たり良好・眺望良好・通風良好・外観タイル張り・2×4工法・外断熱工法
駐車場 3台 建物構造/階建 軽量鉄骨造/2階建
土地権利 所有権 都市計画 非線引区域
用途地域 無指定 接道状況

一方

北 幅6m 公道 接面15m
建ぺい率 - 容積率 -
地目 宅地 地勢 -
セットバック - 建築確認番号 -
現況

空家

引渡可能時期 即時
小学校区

野市小学校1,400

中学校区 野市中学校2,300m
周辺環境

◆マルナカ野市店1,700m◆ローソン野市町北店260mのいち動物公園1,200m香南市役所1,600

特記事項 ・長期優良住宅認定通知書:有 ・評価、証明書:建設住宅性能評価書、設計住宅性能評価書、建築確認完了検査済証 ・フラット35適合証明書:有 ・耐震基準適合証明書:有 ・建築士等の建物検査報告書:有 ・法適合状況調査報告書:有
物件番号

60337

情報公開日 2026/1

リビング

キッチン

キッチン

野市小学校

野市中学校

香南市役所

お気軽にお問合せ・ご相談ください

お電話でのお問合せ・ご相談はこちら
088-855-6152
受付時間
9:00~18:00
定休日
水曜日

お気軽にお問合せください

お電話でのお問合せ・相談予約

088-855-6152

<受付時間>
9:00~18:00
※水曜日は除く

フォームは24時間受付中です。お気軽にご連絡ください。

縁不動産

住所

〒781-0083
高知県高知市北御座12番18号 福徳ハイツ2階事務所

アクセス

「JAファーマーズマーケットとさのさと」より徒歩3分
駐車場2台あり

受付時間

9:00~18:00

定休日

水曜日