〒781-0083 高知県高知市北御座12番18号 福徳ハイツ2階事務所
「JAファーマーズマーケットとさのさと」より徒歩3分 駐車場2台あり
(公社)高知県宅地建物取引業協会会員(公社)全国宅地建物取引業保証協会会員 高知県知事(1)第3047号

9:00~18:00(水曜日を除く)

088-855-6152

中古住宅 高知市愛宕山南町 2SLDK 一ツ橋小学校区 

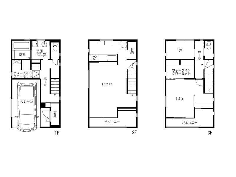
価格 2,480万円 間取り 2SLDK
建物面積 98.52㎡(29.8坪) 土地面積 92.27㎡(27.91坪)
駐車場台数

3台

所在地 高知市愛宕山南町
交通 ・愛宕小橋バス停 徒歩5分 ・高知駅 徒歩15分

おすすめポイント
◇◆2022年[R4]4◆◇
・ウォークインクローゼットを2カ所設けており、季節物や衣類の収納にもゆとりがあります。
・通勤通学やお出かけがスムーズ♪最寄りのバス停徒歩圏内にあり、公共交通機関をご利用の方にも便利な立地です。
・周辺には多彩な商業施設が揃っており、日常の買い物にも便利な立地です。
徒歩10分以内に教育施設が揃う、充実の子育て環境♪お子様の通学に無理ない距離で安心♪

物件詳細情報

所在地 高知市愛宕山南町
物件種目 中古一戸建
価格 2,480万円
交通

・愛宕小橋バス停 徒歩5分 ・高知駅 徒歩15分

間取り

2SLDK

建物面積 98.52㎡(29.8坪)
土地面積 92.27㎡(27.91坪)
築年数 2022[R4] 年4月
リフォーム履歴

-

リノベーション履歴 -
設備 トイレ2ヶ所・温水洗浄便座・タンクレストイレ・追焚機能・浴室乾燥機・浴室暖房・浴室に窓・浴室1坪以上・シャワー付洗面化粧台・システムキッチン・カウンターキッチン・浄水器・床下収納・ウォークインクローゼット・24時間換気システム・複層ガラス・雨戸・シャッター・モニター付インターホン・ダブルロックドア・カードキー・ディンプルキー・火災報知器(報知器)・プロパンガス・上水道・浄化槽・省エネ給湯器
駐車場 3台 建物構造/階建 木造/3階建
土地権利 所有権 都市計画 市街化区域
用途地域 第一種中高層住居専用地域 接道状況

一方
南 

建ぺい率 60% 容積率 200%
地目 宅地 地勢 -
セットバック - 建築確認番号 -
現況

空家

引渡可能時期 相談
小学校区

一ツ橋小学校650

中学校区 愛宕中学校550m
周辺環境

イオンモール高知550mサンシャイン ベルティス店800mセブンイレブン 高知和泉町店550mツルハドラッグ 高知和泉店500

特記事項 -
物件番号

60337

情報公開日 2026/1

リビング

リビング

その他

キッチン

キッチン

キッチン

3階洋室

3階洋室

1階ウォークインクローゼット

3階ウォークインクローゼット

駐車場

前面道路を含む現地写真

一ツ橋小学校

愛宕中学校

イオンモール高知

サンシャイン ベルティス店

セブンイレブン 高知和泉町店

ツルハドラッグ 高知和泉店

お気軽にお問合せ・ご相談ください

お電話でのお問合せ・ご相談はこちら
088-855-6152
受付時間
9:00~18:00
定休日
水曜日

お気軽にお問合せください

お電話でのお問合せ・相談予約

088-855-6152

<受付時間>
9:00~18:00
※水曜日は除く

フォームは24時間受付中です。お気軽にご連絡ください。

縁不動産

住所

〒781-0083
高知県高知市北御座12番18号 福徳ハイツ2階事務所

アクセス

「JAファーマーズマーケットとさのさと」より徒歩3分
駐車場2台あり

受付時間

9:00~18:00

定休日

水曜日