| 価格 | 2,780万円 | 間取り | 2LDK |
|---|
| 専有面積 | 壁芯 68.09㎡(20.59坪) | 管理費/積立金 | 10,100円/18,890円 |
|---|
| 駐車場 | 無 |
|---|---|
| 所在地 | 高知市越前町2丁目 |
| 交通 | ・新屋敷バス停 徒歩2分 ・円行寺口駅 徒歩7分 |
おすすめポイント
◇◆築年数2010年11月 2LDK◆◇
・高知市中心部へのアクセスが良く、生活利便性の高いロケーションです。買い物、公共交通、教育施設、病院など身近に揃い暮らしやすさも、お出かけのしやすさも◎
・徒歩10分以内に教育施設が揃う、充実の子育て環境♪お子様の通学に無理ない距離で安心♪
・大切なペットと暮らせるお部屋です。(条件有)
| 所在地 | 高知市越前町2丁目 |
|---|---|
| 物件種目 | 中古マンション |
| 価格 | 2,780万円 |
| 交通 | ・新屋敷バス停 徒歩2分 ・円行寺口駅 徒歩7分 |
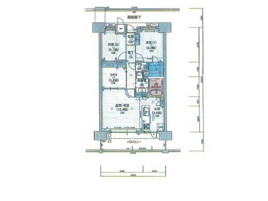
| 間取り | 2LDK/16LDK・5.1和・6洋・3.5サービスルーム |
|---|---|
| 専有面積 | 壁芯 68.09㎡(20.59坪) |
| 管理費/積立金 | 9,060円/9,350円 |
| 築年数 | 2010 [H22]年 11月 |
| リフォーム履歴 | - |
| リノベーション履歴 | - |
| 設備 | バストイレ別・浴室乾燥機・浴室暖房・対面式キッチン・ガスコンロ可・3口コンロ・食器洗浄乾燥機・インターネット対応・オートロック・モニタ付オートロック・防犯カメラ・プロパンガス・上水道・エレベーター・宅配BOX・駐輪場有(無料)・バイク置場有(無料) |
| 駐車場 | 無 | 駐車場備考 | - |
|---|---|---|---|
| 建物構造/階建 | RC/地上11階 5階部分 | 土地権利 | 所有権 |
| バルコニー | 南 12.7㎡ | 管理形態 | 管理会社に全部委託 |
| 管理会社 | 大旺新洋株式会社 | 管理員の勤務形態 | 日勤 |
| 現況 | 空家 | 引渡可能時期 | 即時 |
| 小学校区 | 小高坂小学校240m | 中学校区 | 城西中学校450m |
| 周辺環境 | ◆サニーマート中万々店1,400m◆ローソン 高知越前町店450m◆ローソン 高知小津町店650m◆細木病院400m◆城西公園600m |
| 特記事項 | 駐車場:契約1ヵ月を目途に抽選により1台割り当て。駐車場使用料4,000円~15,000円 |
| 物件番号 | 60310 | 情報公開日 | 2025/12 |
|---|
小高坂小学校
城西中学校
サニーマート中万々店
ローソン 高知越前町店
城西公園
細木病院