〒781-0083 高知県高知市北御座12番18号 福徳ハイツ2階事務所
「JAファーマーズマーケットとさのさと」より徒歩3分 駐車場2台あり
(公社)高知県宅地建物取引業協会会員(公社)全国宅地建物取引業保証協会会員 高知県知事(1)第3047号

9:00~18:00(水曜日を除く)

088-855-6152

中古住宅 高知市一宮しなね一丁目 3SLDK 一宮小学校区 

価格

3,480万円

間取り

3SLDK

建物面積 92.33㎡(27.92坪) 土地面積 135.38㎡(40.95坪)
駐車場台数

3台可

所在地 高知市一宮しなね一丁目
交通

一宮神社前バス停 徒歩9分

おすすめポイント
◇◆築年数2023年3月 3SLDK◆◇
・まわりに家が密集していないので、光も風もよく通る心地いい住まいです。築浅で設備も充実しています。
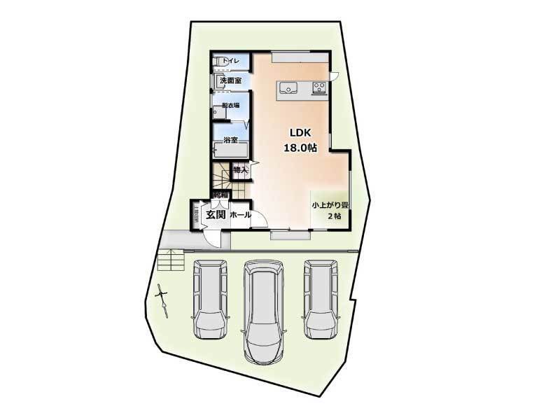
・リビングには小上がりの畳コーナーを設けています。下部収納付で見た目もすっきり。

物件詳細情報

所在地 高知市一宮しなね一丁目
物件種目 中古一戸建
価格 3,480万円
交通 一宮神社前バス停 徒歩9分
間取り

3SLDK/1階 20LDK(2帖畳コーナー)/2階 4.5洋・4.5洋・6.8洋+3WCL

建物面積 92.33㎡(27.92坪)
土地面積 公簿/135.38㎡(40.95坪)
築年数 2023 [H5] 年3月
リフォーム履歴 -
リノベーション履歴 -
設備

トイレ2ヶ所・温水洗浄便座・バストイレ別・追焚機能・浴室乾燥機・浴室1坪以上・シャワー付洗面化粧台・システムキッチン・対面式キッチン・IHクッキングヒーター・食器洗浄乾燥機・収納スペース・全居室収納・クローゼット・ウォークインクローゼット・エアコン・室内洗濯機置場・フローリング・複層ガラス・照明器具・ダウンライト・モニター付インターホン・ダブルロックドア・電気・上水道・下水道・側溝・オール電化・ホスクリーン・ドアタッチキーシステム

駐車場 3台可 建物構造/階建 木造/2階建
土地権利 所有権 都市計画 市街化区域
用途地域 第一種中高層住居専用地域 接道状況 一方
南 幅4m 公道 接面6.3m
建ぺい率 60% 容積率 200%
地目 宅地 地勢 -
セットバック - 建築確認番号 -
現況

空家

引渡可能時期 相談
小学校区

一宮小学校1,100m

中学校区 一宮中学校2,200m
周辺環境 ◆マルナカ一宮店600m◆ローソン一宮しなね店600m◆よどやドラッグ高知一宮店700m
特記事項 -
物件番号 60302 情報公開日 2025/12

区画図

リビング

キッチン

キッチン収納

リビング収納

畳コーナー

食器洗浄乾燥機

浴室

洗面脱衣室

洗面脱衣室

1階トイレ

2階トイレ

洋室
 

洋室

洋室

天窓

バルコニー

収納・階段

ウォークインクローゼット

廊下

玄関

玄関

その他

リビング・エアコン

その他

その他

一宮小学校

一宮中学校

マルナカ一宮店

ローソン一宮しなね店

お気軽にお問合せ・ご相談ください

お電話でのお問合せ・ご相談はこちら
088-855-6152
受付時間
9:00~18:00
定休日
水曜日

お気軽にお問合せください

お電話でのお問合せ・相談予約

088-855-6152

<受付時間>
9:00~18:00
※水曜日は除く

フォームは24時間受付中です。お気軽にご連絡ください。

縁不動産

住所

〒781-0083
高知県高知市北御座12番18号 福徳ハイツ2階事務所

アクセス

「JAファーマーズマーケットとさのさと」より徒歩3分
駐車場2台あり

受付時間

9:00~18:00

定休日

水曜日