〒781-0083 高知県高知市北御座12番18号 福徳ハイツ2階事務所
「JAファーマーズマーケットとさのさと」より徒歩3分 駐車場2台あり
(公社)高知県宅地建物取引業協会会員(公社)全国宅地建物取引業保証協会会員 高知県知事(1)第3047号

9:00~18:00(水曜日を除く)

088-855-6152

中古マンション アルファステイツ梅ノ辻 3LDK 11階部分 潮江東小学校区 

価格 1,660万円 間取り 3LDK
専有面積

壁芯 72.03㎡(21.78坪)

管理費/積立金

10,100円/18,890円

駐車場

有 12,000円/月

所在地 高知市梅ノ辻
交通 ・梅ノ辻バス停 徒歩1分 ・とさでん交通梅ノ辻駅 徒歩3分

おすすめポイント
◇◆築年数2000年5月 3LDK◆◇
・高知市中心部へのアクセスが良く、生活利便性の高いロケーションです。買い物、公共交通、教育施設など身近に揃い暮らしやすさも、お出かけのしやすさも◎
徒歩10分以内に教育施設が揃う、充実の子育て環境♪お子様の通学に無理ない距離で安心♪

・リビングにつながる和室は、お昼寝スペースや来客用としても便利な一部屋です。家族みんなの”ちょっと休憩”にぴったりです。

物件詳細情報

所在地 高知市梅ノ辻
物件種目 中古マンション
価格 1,660万円
交通 ・梅ノ辻バス停 徒歩1分 ・とさでん交通梅ノ辻駅 徒歩3分
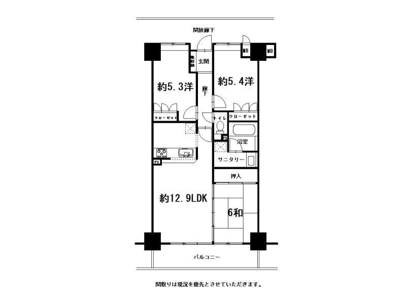
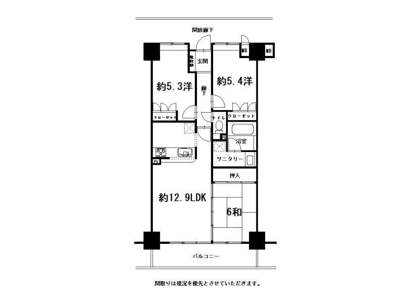
間取り

3LDK/12.9LDK・6和・5.5洋・5.4洋

専有面積 壁芯 72.03㎡(21.78坪)
管理費/積立金 7,100円/20,200円
築年数 2000 [H12]年 5月
リフォーム履歴

-

リノベーション履歴 -
設備 バストイレ別・カウンターキッチン・ガスコンロ可・3口コンロ・全居室収納・クローゼット・オートロック・モニター付インターホン・エレベーター・宅配BOX・駐輪場有・バイク置場有
駐車場 有 12,000円/月 駐車場備考 -
建物構造/階建 SRC/地上14階 11階部分 土地権利 所有権
バルコニー

  南 9.45㎡

管理形態 管理会社に全部委託
管理会社 - 管理員の勤務形態 日勤
現況

居住中

引渡可能時期 相談
小学校区

潮江東小学校650m

中学校区 潮江中学校450m
周辺環境

◆マルナカ百石店750m◆ファミリーマート高知梅ノ辻店54m◆潮江高橋病院160◆潮江郵便局190

特記事項 -
物件番号

60301

情報公開日 2025/12

物件からの眺望

物件からの眺望

物件からの眺望

潮江東小学校

潮江中学校

マルナカ百石店

ファミリーマート 高知梅ノ辻店

潮江高橋病院

潮江郵便局

お気軽にお問合せ・ご相談ください

お電話でのお問合せ・ご相談はこちら
088-855-6152
受付時間
9:00~18:00
定休日
水曜日

お気軽にお問合せください

お電話でのお問合せ・相談予約

088-855-6152

<受付時間>
9:00~18:00
※水曜日は除く

フォームは24時間受付中です。お気軽にご連絡ください。

縁不動産

住所

〒781-0083
高知県高知市北御座12番18号 福徳ハイツ2階事務所

アクセス

「JAファーマーズマーケットとさのさと」より徒歩3分
駐車場2台あり

受付時間

9:00~18:00

定休日

水曜日