| 価格 | 2,550万円 | 間取り | 2LDK |
|---|
| 専有面積 | 壁芯 62.64㎡(18.94坪) | 管理費/積立金 | 9,700円/4,200円 |
|---|
| 駐車場 | 有 1,000円/月 |
|---|---|
| 所在地 | 高知市八反町2丁目 |
| 交通 | ・円行寺分岐バス停 徒歩2分 ・円行寺口駅 徒歩3分 |
おすすめポイント
◇◆築年数2019年11月 2LDK◆◇
・室内はきれいに使用されています。
・大切なペットと暮らせるお部屋です。(相談可)
・広めのバルコニーから気持ちのいい眺めが楽しめるお部屋です。
・徒歩10分以内に教育施設が揃う、充実の子育て環境♪お子様の通学に無理ない距離で安心♪
・周辺には多彩な商業施設が揃っており、さらに「円行寺分岐」バス停、「円行寺口」駅も徒歩5分以内にあり、アクセス良好です。
| 所在地 | 高知市八反町2丁目 |
|---|---|
| 物件種目 | 中古マンション |
| 価格 | 2,550万円 |
| 交通 | ・円行寺分岐バス停 徒歩2分 ・円行寺口駅 徒歩3分 |
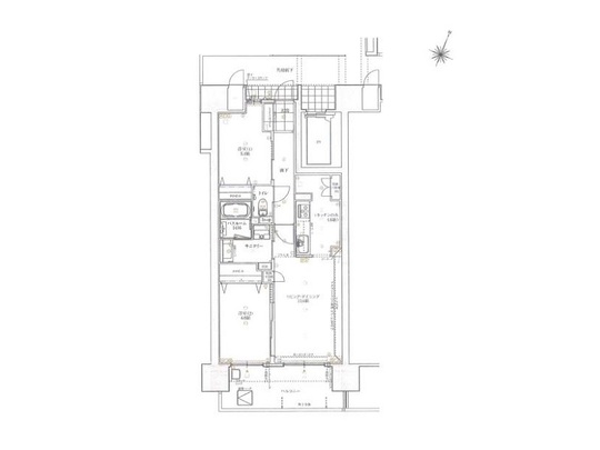
| 間取り | 2LDK/15.2LDK・6洋・5.5洋 |
|---|---|
| 専有面積 | 壁芯 62.64㎡(18.94坪) |
| 管理費/積立金 | 9,700円/4,200円 |
| 築年数 | 2019 [R1]年 11月 |
| リフォーム履歴 | - |
| リノベーション履歴 | - |
| 設備 | 温水洗浄便座・バストイレ別・追焚機能・洗面所・洗面台・システムキッチン・独立型キッチン・3口コンロ・食器洗浄乾燥機・全居室収納・クローゼット・インターネット対応・ダブルロックドア・非接触型ICカードキー・エレベーター・宅配BOX・駐輪場有・バイク置場有 |
| 駐車場 | 有 1,000円/月 | 駐車場備考 | - |
|---|---|---|---|
| 建物構造/階建 | RC/地上15階 14階部分 | 土地権利 | 所有権 |
| バルコニー | 南 11.54㎡ | 管理形態 | 管理会社に全部委託 |
| 管理会社 | 穴吹ハウジングサービス | 管理員の勤務形態 | 日勤・管理組合有 |
| 現況 | 居住中 | 引渡可能時期 | 相談 |
| 小学校区 | 小高坂小学校350m | 中学校区 | 城北中学校350m |
| 周辺環境 | ◆サニーマート中万々店900m◆ローソン南万々店120m◆ダイソー万々店250m◆よどやドラッグ城北店300m◆四国銀行万々支店98m |
| 特記事項 | - |
| 物件番号 | 60298 | 情報公開日 | 2025/12 |
|---|
浴室
脱衣室
洋室
洋室
廊下
バルコニー
玄関
エレベーター
エントランスホール
毎日屋 土佐道路店
小高坂小学校
城北中学校
サニーマート中万々店
ローソン南万々店
ダイソー万々店