〒781-0083 高知県高知市北御座12番18号 福徳ハイツ2階事務所
「JAファーマーズマーケットとさのさと」より徒歩3分 駐車場2台あり
(公社)高知県宅地建物取引業協会会員(公社)全国宅地建物取引業保証協会会員 高知県知事(1)第3047号

9:00~18:00(水曜日を除く)

088-855-6152

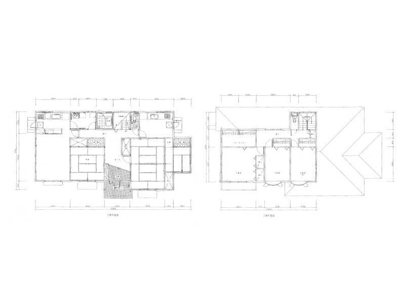
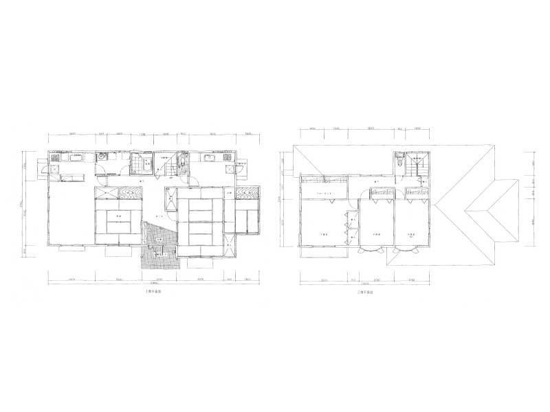
中古住宅 吾川郡いの町天王南9丁目 2階建 7LDK 伊野南小学校区 

価格

2,180万円

間取り

7LDK

建物面積 178.89㎡(54.11坪) 土地面積 334.9㎡(101.3坪)
駐車場台数

3台

所在地 吾川郡いの町天王南9丁目
交通 天王ニュータウン南バス停 徒歩5分

おすすめポイント
◇◆1994年[H6]3月◆◇
・約101坪の敷地が四方道路に囲まれ、採光・通風ともに良好です。
・7LDKの大型間取りでご家族の多い世帯や二世帯住宅にも最適です。

物件詳細情報

所在地 吾川郡いの町天王南9丁目

物件種目

中古一戸建
価格

2,180万円

交通 天王ニュータウン南バス停 徒歩5分 
間取り

7LDK/1階 16LDK・8和・6和・6和・4.5和・6K/2階 6洋・6洋・8洋

建物面積 178.89㎡(54.11坪)
土地面積 334.9㎡(101.3坪)
築年数

1994[H6] 年 3

リフォーム履歴 -
リノベーション履歴 -
設備

プロパンガス・電気・上水道・下水道・側溝

駐車場

3台

建物構造/階建 木造/2階建
土地権利 所有権 都市計画 市街化区域
用途地域 第一種低層住居専用地域 接道状況

角地
北 幅6m 公道 接面21m
北 幅4.1m 公道 接面21m

建ぺい率 60% 容積率 100%
地目 宅地 地勢 -
セットバック - 建築確認番号 -
現況

居住中

引渡可能時期 相談
小学校区

伊野南小学校1,800

中学校区 伊野南中学校2,000m
周辺環境

◆サンプラザ新鮮館・天王店850m◆ローソン いの天王公園前店1,000m◆セブンイレブン いの八田店1,600m◆天王ニュータウン郵便局1,000m

特記事項

-

物件番号

60292

情報公開日

2025/12

外観

前面道路を含む現地

前面道路を含む現地

伊野南小学校

伊野南中学校

サンプラザ新鮮館・天王

ローソン いの天王公園前店

セブンイレブン いの八田店

天王ニュータウン郵便局

お気軽にお問合せ・ご相談ください

お電話でのお問合せ・ご相談はこちら
088-855-6152
受付時間
9:00~18:00
定休日
水曜日

お気軽にお問合せください

お電話でのお問合せ・相談予約

088-855-6152

<受付時間>
9:00~18:00
※水曜日は除く

フォームは24時間受付中です。お気軽にご連絡ください。

縁不動産

住所

〒781-0083
高知県高知市北御座12番18号 福徳ハイツ2階事務所

アクセス

「JAファーマーズマーケットとさのさと」より徒歩3分
駐車場2台あり

受付時間

9:00~18:00

定休日

水曜日