〒781-0083 高知県高知市北御座12番18号 福徳ハイツ2階事務所
「JAファーマーズマーケットとさのさと」より徒歩3分 駐車場2台あり
(公社)高知県宅地建物取引業協会会員(公社)全国宅地建物取引業保証協会会員 高知県知事(1)第3047号

9:00~18:00(水曜日を除く)

088-855-6152

新築住宅 高知市朝倉己⑯ 2階建 4LDK 朝倉第二小学校区 

価格

3,198万円

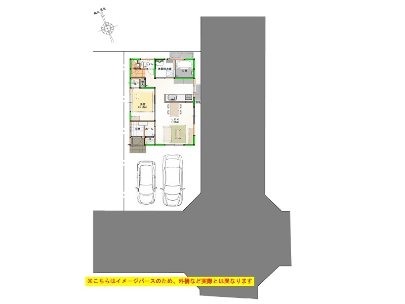
間取り 4LDK
建物面積 95.90㎡(29.00坪) 土地面積 107.49㎡(32.51坪)
駐車場台数

2台

所在地 高知市朝倉己⑯
交通 大谷団地バス停 徒歩3分

おすすめポイント
◇◆2026年[R8]5月 オール電化住宅◆◇
・開放的な角地にある住まい。通風・採光に優れた立地です。

最寄りのバス停徒歩圏内にあり、公共交通機関をご利用の方にも便利な立地です。
・徒歩圏内に「大谷公園」があるため、日々の散歩やお子様の遊び場としても便利に利用できます。

物件詳細情報

所在地 高知市朝倉己⑯

物件種目

新築一戸建
価格

3,198万円

交通 大谷団地バス停 徒歩2分
間取り

4LDK/1階 15LDK・4.3洋/2階 5.3洋・6.8洋・6.7洋

建物面積 95.90㎡(29.00坪)
土地面積 107.49㎡(32.51坪)
築年数

2026 [R8] 年 5

リフォーム履歴 -
リノベーション履歴 -
設備

浄化槽・上水道・対面式キッチン・IHコンロ・水なし両面焼きグリル・食器洗い乾燥機・カウンタートップ人造大理石・浄水器内蔵型水栓・キッチン手元コンセント・断熱浴槽・浴室ポップアップ排水栓・UBエコアクアシャワー・UBマグネットシェルフ・3面鏡洗面化粧台・洗面エコハンドル水栓・浴室換気暖房乾燥機・温水洗浄便座トイレ・節水型トイレ・TVモニター付インターホン・インナーバルコニー・24H換気・外部コンセント・外部水栓・EV充電器・全室居室収納・床下収納・耐震等級3相当・一次エネルギー消費等級6・断熱等性能等級5・ZEH仕様・オール電化仕様・Low-eガラス窓

駐車場

2台

建物構造/階建 木造/2階建
土地権利 所有権 都市計画 市街化区域
用途地域 第一種中高層住居専用地域 接道状況

角地
南 幅5.9m 公道 接面7.8m

東 幅5.9m 公道 接面13.5m

建ぺい率 70% 容積率 200%
地目 宅地 地勢 -
セットバック - 建築確認番号 第R07確認建築高知建技00601号
現況

未完成

引渡可能時期 相談
小学校区

朝倉第二小学校1,000

中学校区 朝倉中学校1,400m
周辺環境

◆毎日屋 土佐道路店140m◆ローソン 高知槇山町店350m◆くいしんぼ如月土佐道路店270m◆大谷公園400m◆ジーンズファクトリー 土佐道路店130m

特記事項

〈保証制度〉
長期住宅保証・長期白蟻保証・アフターメンテナンス

※販売価格は太陽光発電の屋根借りシステム使用時の価格です。
※太陽光無し:3
,198万円 太陽光有り:3,298万円

※太陽光無しを選択された場合は指定の業者と屋根貸し契約を結んで頂きます。
※詳細はお問い合わせください。

物件番号

60276

情報公開日

2025/11

区画図

区画図

外観パース

現地写真

現地写真

現地写真

現地写真

現地写真

現地写真

朝倉第二小学校

朝倉中学校

毎日屋 土佐道路店

ローソン 高知槇山町店

くいしんぼ如月土佐道路店

大谷公園

お気軽にお問合せ・ご相談ください

お電話でのお問合せ・ご相談はこちら
088-855-6152
受付時間
9:00~18:00
定休日
水曜日

お気軽にお問合せください

お電話でのお問合せ・相談予約

088-855-6152

<受付時間>
9:00~18:00
※水曜日は除く

フォームは24時間受付中です。お気軽にご連絡ください。

縁不動産

住所

〒781-0083
高知県高知市北御座12番18号 福徳ハイツ2階事務所

アクセス

「JAファーマーズマーケットとさのさと」より徒歩3分
駐車場2台あり

受付時間

9:00~18:00

定休日

水曜日