| 価格 | 2,680万円 | 間取り | 4SLDK |
|---|
| 建物面積 | 122.57㎡(37.07坪) | 土地面積 | 公簿216.05㎡(65.35坪) |
|---|
| 駐車場台数 | 4台 |
|---|---|
| 所在地 | 高知市長浜 |
| 交通 | とさでん交通 瀬戸横丁バス停 徒歩10分 |
おすすめポイント
◇◆築年数年2010年[H22]4月 オール電化住宅◆◇
・太陽光発電機付きの住まい!毎日の電気代を節約できる、お財布にも嬉しいお家です。
エコキュートリース中!太陽光+エコキュートでかしこく暮らす。
・室内はとても丁寧に使用されており、そのまま気持ちよくお住まいいただけます。
・ロフト付きで空間を有効活用!収納はもちろん、寝室やリラックススペースにもぴったり!
・駐車4台+カーポート付き♪車が多くでも安心の広々スペース。雨の日も玄関まで濡れずに行けるのがポイント!
・周辺は戸建て住宅が立ち並ぶ、閑静なエリアです。
※食器洗浄乾燥機は3年前に交換
| 所在地 | 高知市長浜 |
|---|---|
| 物件種目 | 中古一戸建 |
| 価格 | 2,680万円 |
| 交通 | とさでん交通 瀬戸横丁バス停 徒歩3分 |
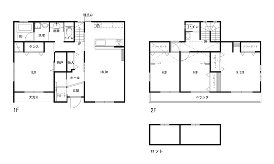
| 間取り | 4SLDK |
|---|---|
| 建物面積 | 122.57㎡(37.07坪) |
| 土地面積 | 公簿/216.05㎡(65.35坪) |
| 築年数 | 2010[H22] 年4月 |
| リフォーム履歴 | - |
| リノベーション履歴 | - |
| 設備 | トイレ2ヶ所・温水洗浄便座・バストイレ別・シャワー・浴室乾燥機・浴室に窓・浴室1坪以上・洗面化粧台・システムキッチン・IHクッキングヒーター・3口コンロ・追い焚き・収納スペース・床下収納・ロフト・全居室収納・クローゼット・シューズクローク・洗濯パン・室内洗濯機置場・勝手口・全居室フローリング・モニター付インターホン・太陽光発電システム |
| 駐車場 | 4台 | 建物構造/階建 | 木造/2階建 |
|---|---|---|---|
| 土地権利 | 所有権 | 都市計画 | 市街化区域 |
| 用途地域 | 第一種中高層住居専用地域 | 接道状況 | - |
| 建ぺい率 | 60% | 容積率 | 200% |
| 地目 | 宅地 | 地勢 | - |
| セットバック | - | 建築確認番号 | - |
| 現況 | 居住中 | 引渡可能時期 | 相談 |
| 小学校区 | 長浜小学校1,000m | 中学校区 | 南海中学校1,200m |
| 周辺環境 | ◆ナンコクスーパー長浜店1,100m◆サニーマート瀬戸店1,100m◆ファミリーマート高知長浜店300m◆セイムス長浜店290m |
| 物件番号 | 61048 | 情報公開日 | 2025/11 |
|---|
外観
前面道路を含む現地写真
駐車場
前面道路を含む現地写真
前面道路を含む現地写真
長浜小学校
南海中学校
ナンコクスーパー長浜店
ドラッグセイムス長浜店