〒781-0083 高知県高知市北御座12番18号 福徳ハイツ2階事務所
「JAファーマーズマーケットとさのさと」より徒歩3分 駐車場2台あり
(公社)高知県宅地建物取引業協会会員(公社)全国宅地建物取引業保証協会会員 高知県知事(1)第3047号

9:00~18:00(水曜日を除く)

088-855-6152

中古住宅 高知市長浜 長浜小学校区 

価格 2,680万円 間取り

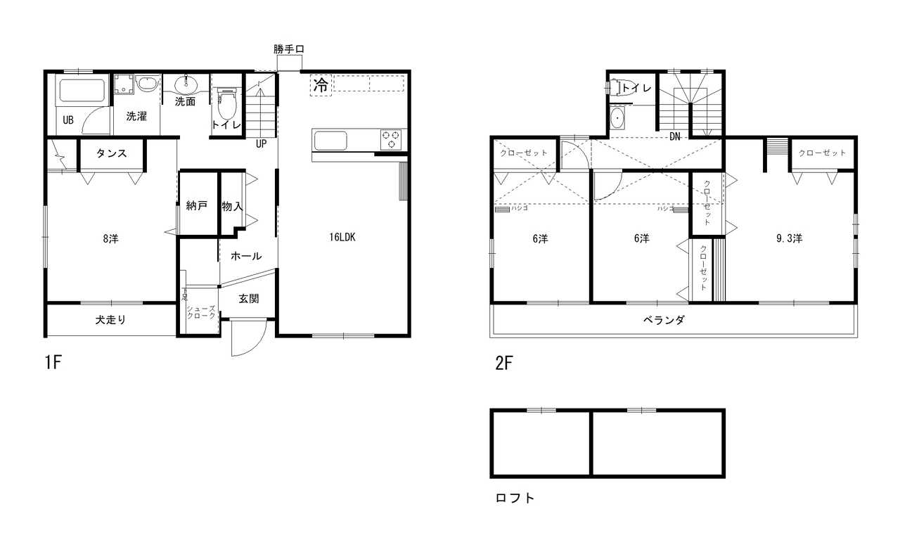
4SLDK

建物面積

122.57㎡(37.07坪)

土地面積

公簿216.05㎡(65.35坪)

駐車場台数

4台

所在地 高知市長浜
交通 とさでん交通 瀬戸横丁バス停 徒歩10分

おすすめポイント
◇◆築年数年2010年[H22]4月 オール電化住宅◆◇
・太陽光発電機付きの住まい!毎日の電気代を節約できる、お財布にも嬉しいお家です。
 
エコキュートリース中!太陽光+エコキュートでかしこく暮らす。
・室内はとても丁寧に使用されており、そのまま気持ちよくお住まいいただけます。
・ロフト付きで空間を有効活用!収納はもちろん、寝室やリラックススペースにもぴったり!
・駐車4台+カーポート付き♪車が多くでも安心の広々スペース。雨の日も玄関まで濡れずに行けるのがポイント!
・周辺は戸建て住宅が立ち並ぶ、閑静なエリアです。
※食器洗浄乾燥機は3年前に交換

物件詳細情報

所在地 高知市長浜
物件種目 中古一戸建
価格 2,680万円
交通 とさでん交通 瀬戸横丁バス停 徒歩3分 
間取り

4SLDK

建物面積 122.57㎡(37.07坪)
土地面積 公簿/216.05㎡(65.35坪)
築年数 2010[H22] 年4月
リフォーム履歴

-

リノベーション履歴 -
設備

トイレ2ヶ所・温水洗浄便座・バストイレ別・シャワー・浴室乾燥機・浴室に窓・浴室1坪以上・洗面化粧台・システムキッチン・IHクッキングヒーター・3口コンロ・追い焚き・収納スペース・床下収納・ロフト・全居室収納・クローゼット・シューズクローク・洗濯パン・室内洗濯機置場・勝手口・全居室フローリング・モニター付インターホン・太陽光発電システム

駐車場 4台 建物構造/階建 木造/2階建
土地権利 所有権 都市計画 市街化区域
用途地域 第一種中高層住居専用地域 接道状況

-

建ぺい率 60% 容積率 200%
地目 宅地 地勢 -
セットバック - 建築確認番号 -
現況

居住中

引渡可能時期 相談
小学校区

長浜小学校1,000m

中学校区

南海中学校1,200

周辺環境

 ◆ナンコクスーパー長浜店1,100m◆サニーマート瀬戸店1,100mファミリーマート高知長浜店300m◆セイムス長浜店290m

物件番号

61048

情報公開日

2025/11

外観

前面道路を含む現地写真

駐車場

前面道路を含む現地写真

前面道路を含む現地写真

長浜小学校

南海中学校

ナンコクスーパー長浜店

ドラッグセイムス長浜店

お気軽にお問合せ・ご相談ください

お電話でのお問合せ・ご相談はこちら
088-855-6152
受付時間
9:00~18:00
定休日
水曜日

お気軽にお問合せください

お電話でのお問合せ・相談予約

088-855-6152

<受付時間>
9:00~18:00
※水曜日は除く

フォームは24時間受付中です。お気軽にご連絡ください。

縁不動産

住所

〒781-0083
高知県高知市北御座12番18号 福徳ハイツ2階事務所

アクセス

「JAファーマーズマーケットとさのさと」より徒歩3分
駐車場2台あり

受付時間

9:00~18:00

定休日

水曜日