| 価格 | 1,480万円 |
|---|---|
| 土地面積 | 132.59㎡(40.10坪) |
| 所在地 | 高知市福井東町 |
| 交通 | ・福井バス停 徒歩2分 ・JR円行寺口駅 徒歩10分 |
おすすめポイント
◇◆建築条件付き土地・全2区画・建築プランあります◆◇
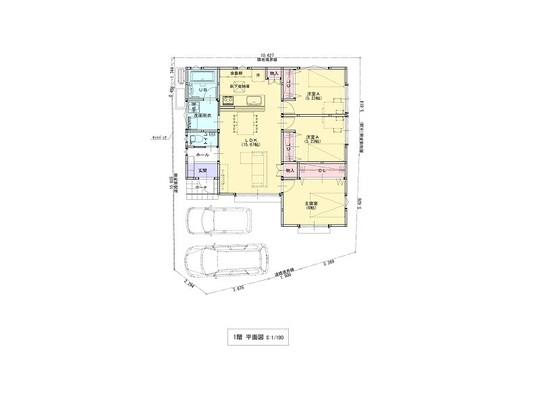
・【参考プラン例】土地価格1,480万円(非課税)+建物プラン価格1,980万円(税込) 総額:3,460万円(税込)※プランは変更可能
・周辺には多彩な商業施設が揃っており、日常の買い物にも便利な立地です。
※上水道引込工事代金・新設分担金439,500 円(税込)
| 所在地 | 高知市福井東町 |
|---|---|
| 物件種目 | 建築条件付き土地 |
| 価格 | 1,480万円 |
| 交通 | ・福井バス停 徒歩2分 ・JR円行寺口駅 徒歩10分 |
| 土地面積 | 公簿/132.59㎡(40.10坪) |
|---|---|
| 築年数 | - |
| 設備 | - |
| 土地権利 | 所有権 | 都市計画 | 市街化区域 |
|---|---|---|---|
| 用途地域 | 第一種中高層住居専用地域 | 接道状況 | 二方向 西・南 |
| 建ぺい率 | 70% | 容積率 | 200% |
| 地目 | 雑種地 | 地勢 | - |
| セットバック | - | 建築確認番号 | - |
| 現況 | 更地 | 引渡可能時期 | 相談 |
| 小学校区 | 旭東小学校1,000m | 中学校区 | 城西中学校1,500m |
| 周辺環境 | ◆サニーマート山手店550m◆ローソン高知福井東店180m◆ドラッグセイムス福井店450m◆福井簡易郵便局190m |
| 特記事項 | 下水 |
| 物件番号 | 60250 | 情報公開日 | 2025/8 |
|---|
城西中学校
サニーマート山手店
ローソン 高知福井東店