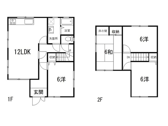
| 価格 | 290万円 | 間取り | 4LDK |
|---|
| 建物面積 | 85.28㎡(25.79坪) | 土地面積 | 109.67㎡(33.17坪) |
|---|
| 駐車場台数 | 3台 |
|---|---|
| 所在地 | 高知市重倉 |
| 交通 | 緑ヶ丘団地バス停 徒歩3分 |
おすすめポイント
◇◆築年数1992年[H4]3月◆◇
・緑に囲まれた静かなエリアです♪
・4LDK・日当たり良好な物件です。※手直し必要です。
・「緑ヶ丘団地」バス停まで徒歩3分♪公共交通機関をご利用の方に便利な立地です。
| 所在地 | 高知市重倉 |
|---|---|
| 物件種目 | 中古一戸建 |
| 価格 | 290万円 |
| 交通 | 緑ヶ丘団地バス停 徒歩3分 |
| 間取り | 4LDK |
|---|---|
| 建物面積 | 85.28㎡(25.79坪) |
| 土地面積 | 公簿/109.67㎡(33.17坪) |
| 築年数 | 1992[H4] 年3月 |
| リフォーム履歴 | - |
| リノベーション履歴 | - |
| 設備 | - |
| 駐車場 | 3台 | 建物構造/階建 | 木造/2階建 |
|---|---|---|---|
| 土地権利 | 所有権 | 都市計画 | 市街化区域 |
| 用途地域 | 区域外 | 接道状況 | - |
| 建ぺい率 | - | 容積率 | - |
| 地目 | 宅地 | 地勢 | - |
| セットバック | - | 建築確認番号 | - |
| 現況 | 空家 | 引渡可能時期 | 相談 |
| 小学校区 | 久重小学校2,700m | 中学校区 | 愛宕中学校7,000m |
| 周辺環境 | ◆高知重倉簡易郵便局1,100m◆きんろう病院5,700m◆エースワン秦泉寺店5,800m |
| 物件番号 | 61039 | 情報公開日 | 2025/8 |
|---|
リビング
リビング
キッチン
浴室
洗面所
トイレ
洋室
洋室
洋室
和室
和室
玄関
外観
外観
前面道路を含む現地写真
久重小学校
愛宕中学校
高知重倉簡易郵便局