| 価格 | 2,860万円 | 間取り | 3LDK |
|---|
| 建物面積 | 77.83㎡(23.54坪) | 土地面積 | 公簿/132.54㎡(40.09坪) |
|---|
| 駐車場台数 | 3台 |
|---|---|
| 所在地 | 吾川郡いの町枝川 |
| 交通 | ・枝川バス停 徒歩4分 ・とさでん交通枝川駅 徒歩4分 |
おすすめポイント
◇◆2025年[R7]6月完成◆◇
・全居室収納あり!たっぷりの収納力を備えたウォークインクロゼット!
・仲間が集まる家にピッタリ!来客も安心、ゆったり駐車スペースは3台可♪
・最寄りのバス停・電停が徒歩圏内にあり、公共交通機関をご利用の方にも便利な立地です。
・買物施設が充実している便利な住環境!
| 所在地 | 吾川郡いの町枝川 |
|---|---|
| 物件種目 | 新築一戸建 |
| 価格 | 2,860万円 |
| 交通 | ・枝川バス停 徒歩4分 ・とさでん交通枝川駅 徒歩4分 |
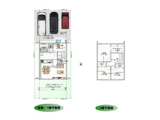
| 間取り | 3LDK/1階 15.53LDK/2階 6.01洋・4.5洋・4.25洋 |
|---|---|
| 建物面積 | 77.83㎡(23.54坪) |
| 土地面積 | 公簿/132.54㎡(40.09坪) |
| 築年数 | 2025[R7] 年6月完成 |
| リフォーム履歴 | - |
| リノベーション履歴 | - |
| 設備 | 浄化槽・側溝・食器洗浄乾燥機・バストイレ別・温水洗浄便座・ウォークインクローゼット・玄関収納・システムキッチン・IHクッキングヒーター・浴室暖房乾燥機・全居室収納・クロゼット・オール電化 |
| 駐車場 | 3台 | 建物構造/階建 | 木造/2階建 |
|---|---|---|---|
| 土地権利 | 所有権 | 都市計画 | 市街化区域 |
| 用途地域 | 第一種低層住居専用地域 | 接道状況 | 一方 |
| 建ぺい率 | 60% | 容積率 | 100% |
| 地目 | 宅地 | 地勢 | - |
| 私道面積 | - | 建築確認番号 | 第R06確認建築高知建技00833号 |
| 現況 | 空家 | 引渡可能時期 | 相談 |
| 小学校区 | 枝川小学校1,200m | 中学校区 | 伊野中学校2,100m |
| 周辺環境 | ◆サンシャイン ラヴィーナ店650m◆ローソン伊野枝川駅前店200m◆サニーアクシスいの店800m◆枝川郵便局220m |
| 特記事項 | 省令準耐火対応・建物保証20年(住宅瑕疵保険10年+延長保証10年)・地盤保証20年・住宅設備延長保証10年・メンテナンス保証サービス2年・住宅トラブル応急対応サポート5年 |
| 物件番号 | 60232 | 情報公開日 | 2025/7 |
|---|
リビング
リビング
リビング
リビング
キッチン
キッチン
浴室
洗面台
洗濯機置き場
トイレ
洋室
洋室
洋室
洋室
洋室
玄関
玄関
2F廊下
収納
庭
外観
外観
外観
前面道路を含む現地写真
前面道路を含む現地写真
伊野中学校
サンシャイン ラヴィーナ店
ローソン伊野枝川駅前店
サニーアクシスいの店
枝川郵便局