| 価格 | 3,470万円 | 間取り | 3LDK |
|---|
| 建物面積 | 83.84㎡(25.36坪) | 土地面積 | 193.15㎡(58.42坪) |
|---|
| 駐車場台数 | 2台 |
|---|---|
| 所在地 | 香美市土佐山田町 |
| 交通 | ・JR土佐山田駅 徒歩12分・北本町1丁目バス停 徒歩10分 |
おすすめポイント
◇◆2025年[R7]10月完成予定◆◇
| 所在地 | 香美市土佐山田町 |
|---|---|
| 物件種目 | 新築一戸建 |
| 価格 | 3,470万円 |
| 交通 | ・JR土佐山田駅 徒歩12分・北本町1丁目バス停 徒歩10分 |
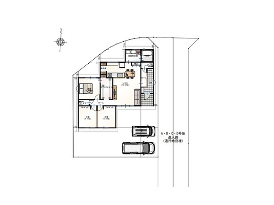
| 間取り | 3LDK/1階 16.62LDK・6.12洋・4.75洋・4.75洋 |
|---|---|
| 建物面積 | 83.84㎡(25.36坪) |
| 土地面積 | 公簿/ 193.15㎡(58.42坪) |
| 築年数 | 2025 [R7] 年10月完成予定 |
| リフォーム履歴 | - |
| リノベーション履歴 | - |
| 設備 | バストイレ別・全居室収納・WIC・洗面台 |
| 駐車場 | 2台 | 建物構造/階建 | 木造/平屋 |
|---|---|---|---|
| 土地権利 | 所有権 | 都市計画 | 市街化区域 |
| 用途地域 | 第一種低層住居専用地域 | 接道状況 | - |
| 建ぺい率 | 60% | 容積率 | 100% |
| 地目 | 宅地 | 地勢 | - |
| セットバック | - | 建築確認番号 | 第R07確認建築高知建技9号 |
| 現況 | 未完成 | 引渡可能時期 | 相談 |
| 小学校区 | 山田小学校1,100m | 中学校区 | 鏡野中学校950m |
| 周辺環境 | ◆業務用食品スーパーPROMART土佐山田店600m◆ドラッグセイムス土佐山田北本町店290m◆セブンイレブン香美八王子宮前店450m |
| 物件番号 | 60221 | 情報公開日 | 2025/6 |
|---|
業務用食品スーパーPROMART土佐山田店
セブンイレブン香美八王子宮前店
ドラッグセイムス 土佐山田北本町店