| 価格 | 1,780万円 | 間取り | 3LDK |
|---|
| 建物面積 | 84.51㎡(25.56坪) | 土地面積 | 192.91㎡(58.35坪) |
|---|
| 駐車場台数 | 2台 |
|---|---|
| 所在地 | 高知市瀬戸西町3丁目 |
| 交通 | 団地南口バス停 徒歩7分 |
おすすめポイント
◇◆築年数1984年[S59]4月・リノベーション住宅◆◇
・リノベーション住宅♪ぜひ現地にてきれいな住まいをご覧ください
・周辺には多彩な商業施設が揃っており、日常の買い物にも便利な立地です
・「団地南口」バス停まで徒歩7分!公共交通機関をご利用の方にも便利なバス停至近の立地です
| 所在地 | 高知市瀬戸西町3丁目 |
|---|---|
| 物件種目 | 中古一戸建 |
| 価格 | 1,780万円 |
| 交通 | 団地南口バス停 徒歩7分 |
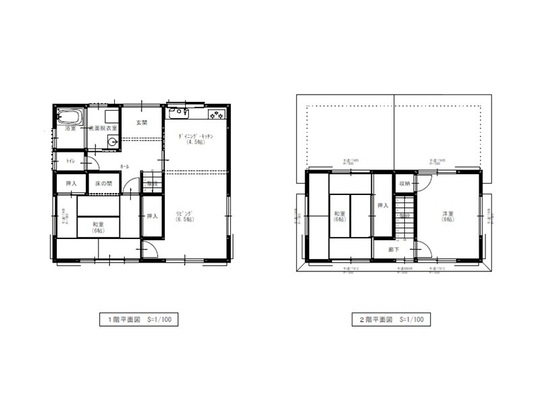
| 間取り | 3LDK/1階 11DK・6和/2階 6洋・6洋 |
|---|---|
| 建物面積 | 84.51㎡(25.56坪) |
| 土地面積 | 公簿/192.91㎡(58.35坪) |
| 築年数 | 1984[S59] 年4月 |
| リフォーム履歴 | - |
| リノベーション履歴 | ◆リノベーション住宅 (2023年9月完了) 【内容】畳表替え・LDK床材張替え・全部屋クロス張替え・水廻り一式(キッチン、トイレ、お風呂、洗面化粧台)交換・水廻りクッションフロア交換・屋根、外壁一式塗装済み |
| 設備 | 下水道・側溝・浴室暖房乾燥機・バストイレ別・室内洗濯機置場・シャワートイレ・食洗器 |
| 駐車場 | 2台 | 建物構造/階建 | 木造/2階建 |
|---|---|---|---|
| 土地権利 | 所有権 | 都市計画 | 市街化区域 |
| 用途地域 | 第一種低層住居専用地域 | 接道状況 | 二方 南 幅5.39m 公道 西 幅5.41m 公道 |
| 建ぺい率 | 50% | 容積率 | 80% |
| 地目 | 宅地 | 地勢 | - |
| セットバック | - | 建築確認番号 | - |
| 現況 | 空家 | 引渡可能時期 | 相談 |
| 小学校区 | 横浜小学校1,200m | 中学校区 | 横浜中学校1,600m |
| 周辺環境 | ◆サニーマート瀬戸店500m◆サンシャイン ヴィアン店600m◆セブンイレブン高知横浜南店550m◆mac横浜店450m◆ダイソー瀬戸店400m |
| 物件番号 | 60125 | 情報公開日 | 2025/2 |
|---|
サニーマート 瀬戸店
セブンイレブン 高知横浜南店
mac横浜店