〒781-0083 高知県高知市北御座12番18号 福徳ハイツ2階事務所
「JAファーマーズマーケットとさのさと」より徒歩3分 駐車場2台あり
(公社)高知県宅地建物取引業協会会員(公社)全国宅地建物取引業保証協会会員 高知県知事(1)第3047号

9:00~18:00(水曜日を除く)

088-855-6152

中古住宅 高知市朝倉東町 2階建 4LDK 朝倉小学校区 

価格 2,280万円 間取り 4LDK
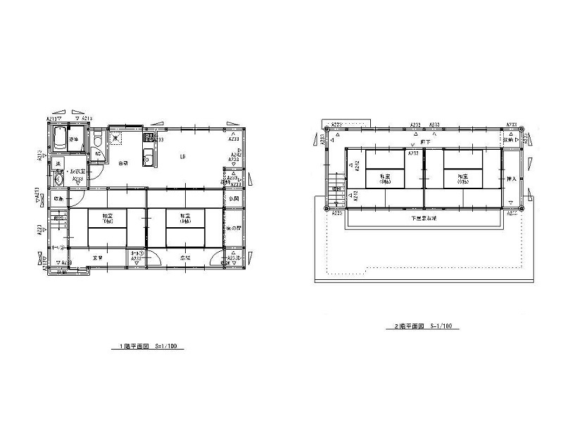
建物面積 106.82㎡(32.31坪) 土地面積 196.05㎡(59.30坪)
駐車場台数

3台以上可能

所在地 高知市朝倉東町
交通 南横町バス停 徒歩4分 

おすすめポイント
◇◆2023年9月・リフォーム済◆◇
・リフォーム済できれいな住まいをぜひ現地にてご覧ください!
・駐車場3台以上可能!趣味のスペースや洗車スペース等に有効です。
・フジグラン高知まで徒歩6分!毎日のお買物に便利な近さです。

物件詳細情報

所在地 高知市朝倉東町
物件種目 中古一戸建
価格 2,280万円
交通 南横町バス停 徒歩4分 
間取り

3LDK/1階 LDK・6和/2階 6洋・5.2洋・6和

建物面積 106.82㎡(32.31坪)
土地面積 公簿/ 196.05㎡(59.30坪)
築年数 1980 [S55] 年5月
リフォーム履歴

【2023年9月】
内装:畳表替え・LDK床材張替え・全部屋クロス張替え
水回り:キッチン・浴室・トイレ・洗面化粧台・交換/水廻りクッションフロア交換

リノベーション履歴 -
設備 上水道・下水道・浴室乾燥機・温水洗浄便座・浴室に窓あり・システムキッチン・食器洗浄乾燥機・モニター付インターホン・全居室収納・庭
駐車場 3台以上可能 建物構造/階建 木造/2階建
土地権利 所有権 都市計画 市街化区域
用途地域 第一種中高層住居専用地域 接道状況 角地 
南 4.9m公道
東 5.5m公道 
建ぺい率 60% 容積率 200%
地目 宅地 地勢 平坦
セットバック - 建築確認番号 -
現況

空家

引渡可能時期 相談
小学校区

朝倉小学校1,400m

中学校区 朝倉中学校2,000m
周辺環境

◆フジグラン高知400m◆ファミリーマート朝倉横町店260m◆mac朝倉店400m◆高知西病院850m◆TSUTAYA土佐道路店500m

特記事項 ◆耐震改修工事済み◆既存住宅瑕疵保険5年間
物件番号 60040 情報公開日 2024/10

キッチン

和室

和室

和室

駐車場

外観

外観

朝倉小学校

朝倉中学校

フジグラン高知

ファミリーマート朝倉横町店

mac朝倉店

TSUTAYA土佐道路店

高知西病院

お気軽にお問合せ・ご相談ください

お電話でのお問合せ・ご相談はこちら
088-855-6152
受付時間
9:00~18:00
定休日
水曜日

お気軽にお問合せください

お電話でのお問合せ・相談予約

088-855-6152

<受付時間>
9:00~18:00
※水曜日は除く

フォームは24時間受付中です。お気軽にご連絡ください。

縁不動産

住所

〒781-0083
高知県高知市北御座12番18号 福徳ハイツ2階事務所

アクセス

「JAファーマーズマーケットとさのさと」より徒歩3分
駐車場2台あり

受付時間

9:00~18:00

定休日

水曜日