〒781-0083 高知県高知市北御座12番18号 福徳ハイツ2階事務所
「JAファーマーズマーケットとさのさと」より徒歩3分 駐車場2台あり
(公社)高知県宅地建物取引業協会会員(公社)全国宅地建物取引業保証協会会員 高知県知事(1)第3047号

9:00~18:00(水曜日を除く)

088-855-6152

中古住宅 高知市南御座 2階建(店舗付) 3LDK 昭和小学校区 

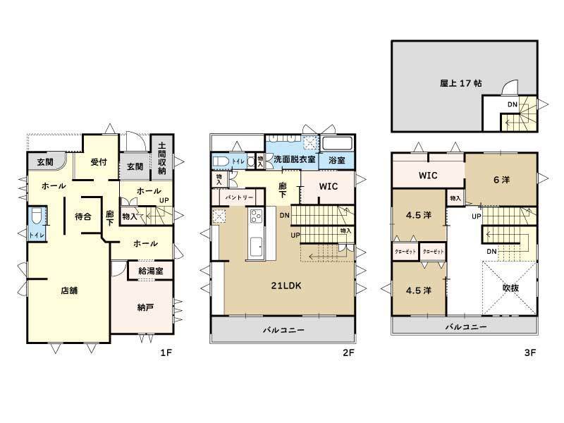
価格 4,580万円 間取り 3LDK+店舗付
建物面積 185.93㎡(56.24坪) 土地面積

164.90㎡(49.88坪)

駐車場台数

3台

所在地 高知市南御座
交通 南御座バス停 徒歩3分 

おすすめポイント
◇◆築年数2016年1月 3LDK+店舗付◆◇

・3階建て中古住宅!1階は店舗として使用しています。
「南御座」バス停まで徒歩3分の好立地
・サニーマートとさのさと御座店まで徒歩4分!毎日のお買物に便利な近さ!

物件詳細情報

所在地 高知市南御座 
物件種目 中古一戸建
価格 4,580万円
交通 南御座バス停 徒歩3分
間取り

3LDK/1階 店舗/2階 21LDK/3階 6洋・4.5洋・4.5洋

建物面積 185.93㎡(56.24坪)
土地面積 公簿/ 164.90㎡(49.88坪)
築年数 2016 [H28]年  1月
リフォーム履歴

-

リノベーション履歴 -
設備 オール電化・太陽光発電・システムキッチン・IHクッキングヒーター・バストイレ別・温水洗浄便座・浴室乾燥機・ウォークインクローゼット・バルコニー・TVドアホン・屋上
駐車場 3台 建物構造/階建 木造/3階建
土地権利 所有権 都市計画 市街化区域
用途地域 準工業地域 接道状況 -
建ぺい率 60% 容積率 200%
地目 宅地 地勢 -
セットバック - 建築確認番号 -
現況

居住中

引渡可能時期 相談
小学校区

昭和小学校950m

中学校区 城東中学校650m
周辺環境

◆サニーマートとさのさと御座店270m◆セブンイレブン杉井流店300m蔦屋書店500m◆DCM御座400m◆佐野屋高知インター店600m

特記事項 ◆太陽光発電4kw:1K 26円で買取中
物件番号 61001 情報公開日 2024/10

間取り

外観

前面道路

前面道路

昭和小学校

城東中学校

サニーマートとさのさと御座店

セブンイレブン杉井流店

蔦屋書店

DCM御座店

佐野屋高知インター店

ドラッグストアコスモス江陽小学校前店

お気軽にお問合せ・ご相談ください

お電話でのお問合せ・ご相談はこちら
088-855-6152
受付時間
9:00~18:00
定休日
水曜日

お気軽にお問合せください

お電話でのお問合せ・相談予約

088-855-6152

<受付時間>
9:00~18:00
※水曜日は除く

フォームは24時間受付中です。お気軽にご連絡ください。

縁不動産

住所

〒781-0083
高知県高知市北御座12番18号 福徳ハイツ2階事務所

アクセス

「JAファーマーズマーケットとさのさと」より徒歩3分
駐車場2台あり

受付時間

9:00~18:00

定休日

水曜日