| 価格 | 636万円 |
|---|---|
| 土地面積 | 175.23㎡(53.00坪) |
| 所在地 | 香美市土佐山田町神母ノ木 |
| 交通 | 神母木龍河洞通バス停 徒歩1分 |
おすすめポイント
◇◆建築条件なし土地・お好きなハウスメーカーで建てられます◆◇
・建築プランあります!詳細はお問い合わせください。
| 所在地 | 香美市土佐山田町神母ノ木 |
|---|---|
| 物件種目 | 建築条件なし土地 |
| 価格 | 636万円 |
| 交通 | 神母木龍河洞通バス停 徒歩1分 |
| 土地面積 | 公簿/ 175.23㎡(53.00坪) |
|---|---|
| 築年数 | - |
| 設備 | - |
| 土地権利 | 所有権 | 都市計画 | 市街化調整区域 |
|---|---|---|---|
| 用途地域 | 無指定 | 接道状況 | - |
| 建ぺい率 | 60% | 容積率 | 200% |
| 地目 | 雑種地 | 地勢 | - |
| セットバック | - | 建築確認番号 | - |
| 現況 | 更地 | 引渡可能時期 | 即 |
| 小学校区 | 片地小学校350m | 中学校区 | 鏡野中学校2,000m |
| 周辺環境 | ◆バリューかがみの店2,000m◆ファミリーマート土佐山田談議所店750m◆神母ノ木郵便局270m◆龍河温泉1,000m |
| 特記事項 | ◆上水道、準備配管引込済◆下水道管引込済 ※1㎡当り460円の負担金が必要◆給水装置新設負担金別途必要 |
| 物件番号 | 60034 | 情報公開日 | 2024/10 |
|---|
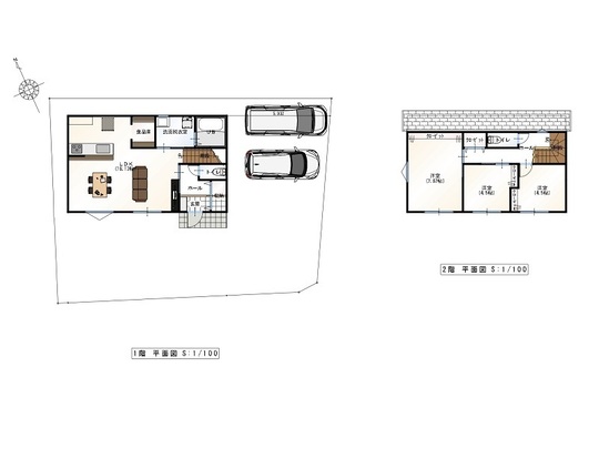
プラン例:間取り
片地小学校
鏡野中学校
ファミリーマート土佐山田談議所店
神母ノ木郵便局
龍河温泉