〒781-0083 高知県高知市北御座12番18号 福徳ハイツ2階事務所
「JAファーマーズマーケットとさのさと」より徒歩3分 駐車場2台あり
(公社)高知県宅地建物取引業協会会員(公社)全国宅地建物取引業保証協会会員 高知県知事(1)第3047号

9:00~18:00(水曜日を除く)

088-855-6152

新築住宅 高知市南久万・北 2階建 3LDK 初月小学校区 

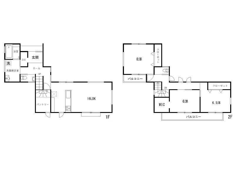
価格 3,780万円 間取り 3LDK
建物面積 105.99㎡(32.06坪) 土地面積 172.01㎡(52.03坪)
駐車場台数

3台

所在地 高知市南久万
交通 南久万バス停 徒歩2分

おすすめポイント
◇◆2025年[R7]9月 完成◆◇
・たっぷりの収納力を備えたウォークインクロゼット付!室内をすっきりとさせてくれます。
​・買物施設が充実した住環境!買い物便利なサニーマート中万々店(500m)徒歩4分の近さ!
・「南久万」バス停、北環状線まで徒歩2分のアクセスが良好な立地!

物件詳細情報

所在地 高知市南久万 
物件種目 新築一戸建
価格 3,780万円
交通 南久万バス停 徒歩2分
間取り

3LDK/1階 16LDK/2階 8洋・6洋・6.5洋

建物面積 105.99㎡(32.06坪)
土地面積 公簿/ 172.01㎡(52.03坪)
築年数 2025[R7] 年 9月完成
リフォーム履歴 -
リノベーション履歴 -
設備 省令準耐火仕様・食器洗浄乾燥機付きシステムキッチン・浴室暖房換気乾燥機ユニットバス・住宅瑕疵保証(JIO)10年・地盤保証20年
駐車場 3台 建物構造/階建 木造/2階建
土地権利 所有権 都市計画 市街化区域
用途地域 第一種住居地域 接道状況
建ぺい率 60% 容積率 200%
地目 宅地 地勢 平坦
セットバック - 建築確認番号 第R04-01305号
現況

未完成

引渡可能時期 相談
小学校区

初月小学校750m

中学校区 城北中学校900m
周辺環境 ◆サニーマート中万々店500m◆ローソン中久万280m◆ダイソー万々店300m◆中万々郵便局450m◆ツルハドラッグ万々店600m◆TSUTAYA中万々店450m◆細木病院1300m
物件番号 60014 情報公開日 2024/10

リビング

キッチン

キッチン

キッチン収納

パントリー

浴室

洗面脱衣室

1Fトイレ

2Fトイレ

洋室

洋室

洋室

ウォークインクローゼット

洋室

洋室

クローゼット

玄関

玄関

シューズインクローク

玄関

外観

外観

前面道路を含む現地写真

初月小学校

城北中学校

サニーマート中万々店

ローソン中久万店

TSUTAYA中万々店

ダイソー万々店

中万々郵便局

ツルハドラッグ万々店

細木病院

お気軽にお問合せ・ご相談ください

お電話でのお問合せ・ご相談はこちら
088-855-6152
受付時間
9:00~18:00
定休日
水曜日

お気軽にお問合せください

お電話でのお問合せ・相談予約

088-855-6152

<受付時間>
9:00~18:00
※水曜日は除く

フォームは24時間受付中です。お気軽にご連絡ください。

縁不動産

住所

〒781-0083
高知県高知市北御座12番18号 福徳ハイツ2階事務所

アクセス

「JAファーマーズマーケットとさのさと」より徒歩3分
駐車場2台あり

受付時間

9:00~18:00

定休日

水曜日